Development Assessment Panel
Business Paper
|
date of meeting: |
|
Wednesday 20 April 2022 |
|
location: |
|
via SKYPE |
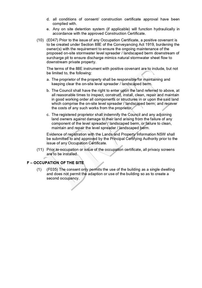
|
time: |
|
2:00pm |
CHARTER
To assist in managing Council's development assessment function by providing independent, transparent and expert determinations of development applications that fall outside of staff delegations.
· To review development application reports and conditions. The focus of the Panel’s review is to be on those issues raised in submissions received following exhibition of development applications;
· To determine development applications where there are 3 or more unique submissions or where an application is outside of staff delegations;
· To refer development applications to Council for determination where necessary;
· To provide a forum for objectors and applicants to make submissions on applications before the Development Assessment Panel (DAP);
· To maintain transparency in the determination of development applications.
Pursuant to Section 377 of the Local Government Act, 1993 delegation to:
· Determine development applications under Part 4 of the Environmental Planning and Assessment Act 1979 having regard to the relevant environmental planning instruments, development control plans and Council policies.
· Vary, modify or release restrictions as to use and/or covenants created by Section 88B instruments under the Conveyancing Act 1919 in relation to development applications for subdivisions being considered by the panel.
· Determine Koala Plans of Management under State Environmental Planning Policy 44 - Koala Habitat Protection associated with development applications being considered by the Panel.
Noting the trigger to escalate decision making to Council as highlighted in section 5.2.
3.1 Voting Members
· Three (3) independent external members will be selected for each scheduled DAP meeting from an appointed pool of members. One of the independent external members to be the Chairperson. Independent members will be rostered onto meeting on a rotational basis where possible.
· Group Manager Development Assessment (alternate - Director Development and Environment or Development Assessment Planning Coordinator).
The independent external members shall have expertise in one or more of the following areas:
planning, architecture, heritage, the environment, urban design, economics, traffic and transport, law, engineering, government and public administration.
Not applicable.
· Members must act faithfully and diligently and in accordance with this Charter.
· Members must comply with Council's Code of Conduct.
· Except as required to properly perform their duties, DAP members must not disclose any confidential information (as advised by Council) obtained in connection with the DAP functions.
· Members will have read and be familiar with the documents and information provided by Council prior to attending a DAP meeting.
· Members must act in accordance with Council's Workplace Health and Safety Policies and Procedures.
· External members of the Panel are not authorised to speak to the media on behalf of Council. Council officers that are members of the Committee are bound by the existing operational delegations in relation to speaking to the media.
The independent external members will be appointed for the term of Four (4) years or until such time as an expression of interest process to source Panel members is completed for the proceeding four (4) year term.
· A pool of independent external members (including the Chair) shall be appointed by the Chief Executive Officer following an external Expression of Interest process. Previous Panel members are eligible to be reappointed on the Panel following this expression of interest process.
· Independent members will be rostered on to Panel meetings on a rotational basis where possible to suit Panel member availability and Panel operational needs.
· Staff members on the Panel shall be appointed by the Chief Executive Officer.
· The Development Assessment Panel will generally meet on the 1st and 3rd Thursday each month at 2.00pm at the Port Macquarie offices of Council.
· Special Meetings of the Panel may be convened by the Director Development and Environment with three (3) days’ notice.
5.1 Meeting Format
· At all meetings of the Panel the Chairperson shall occupy the Chair and preside. The Chair will be responsible for keeping of order at meetings.
· Meetings shall be open to the public.
· The Panel will hear from an applicant and objectors or their representatives. Speakers are required to register to speak by close of business on the day prior to the Panel meeting.
· The Panel shall have the discretion to ask the applicant and objectors questions relating to the proposal and their submission. There is no ‘right of reply’ for an objector or applicant.
· Where there are a large number of persons making submissions with common interests, the Panel shall have the discretion to hear a representative of those persons rather than multiple persons with the same interest.
· Council assessment staff will be available at Panel meetings to provide technical assessment advice and assistance to the Panel.
· Where considered necessary, the Panel will conduct site inspections prior to the meeting.
· Decisions are to be made by consensus. Where consensus is not possible on any item, that item is to be referred to Council for a decision.
· All development applications involving a proposed variation to a development standard greater than 10% under Clause 4.6 of the Local Environmental Plan will be considered by the Panel and recommendation made to the Council for a decision.
Three (3) members must be present at a meeting to form a quorum.
Independent Chair (alternate - independent member).
· The Director Development and Environment is to be responsible for ensuring that the Panel has adequate secretariat support. The secretariat will ensure that the business paper and supporting papers are circulated at least three (3) days prior to each meeting. Minutes shall be appropriately approved and circulated to each member within three (3) weeks of a meeting being held.
· The format of and the preparation and publishing of the Business Paper and Minutes shall be similar to the format for Ordinary Council Meetings.
Minutes will be limited to the recording of decisions only and how each member votes for each item before the Panel.
Not applicable.
· Members of the Panel must comply with the applicable provisions of Council’s Code of Conduct. It is the personal responsibility of members to comply with the standards in the Code of Conduct and regularly review their personal circumstances with this in mind.
· Panel members must declare any conflict of interest at the start of each meeting or before discussion of a relevant item or topic. Details of any conflicts of interest are to be appropriately minuted. Where members are deemed to have a real or perceived conflict of interest, it may be appropriate they be excused from deliberations on the issue where the conflict of interest may exist. A Panel meeting may be postponed where there is no quorum.
All parties in attendance at a DAP meeting shall conduct
themselves respectfully ie. not disrupt the conduct of the meeting, not
interject, act courteously and with compassion and empathy and sensitivity and
will not insult, denigrate or make defamatory or personal reflections on or
impute improper motives to the DAP, Council staff or other members of the
public.
Development Assessment Panel
ATTENDANCE REGISTER
|
Member |
01/10/21 |
21/10/21 |
18/11/21 |
16/12/21 |
03/02/22 |
17/02/22 |
|
David Crofts |
P |
P |
P |
P |
P |
P |
|
Michael Mason |
|
|
P |
P |
P |
P |
|
Chris Gee |
P |
P |
P |
|
P |
|
|
Tony McNamara |
P |
P |
|
P |
|
P |
|
Dan Croft (Group Manager Development Services) Grant Burge (acting) |
P |
P |
P |
P |
P |
P |
|
Patrick Galbraith-Robertson (Development Planning Coordinator) |
P |
P |
P |
|
P |
P |
Key: P = Present
A = Absent With Apology
X = Absent Without Apology
Meeting Dates for 2022
|
20/01/2022 |
Function Room |
2.00pm |
|
3/02/2022 |
Function Room |
2.00pm |
|
17/02/2022 |
Function Room |
2.00pm |
|
3/03/2022 |
Function Room |
2.00pm |
|
17/03/2022 |
Function Room |
2.00pm |
|
7/04/2022 |
Function Room |
2.00pm |
|
21/04/2022 |
Function Room |
2.00pm |
|
5/05/2022 |
Function Room |
2.00pm |
|
19/05/2022 |
Function Room |
2.00pm |
|
2/06/2022 |
Function Room |
2.00pm |
|
16/06/2022 |
Function Room |
2.00pm |
|
7/07/2022 |
Function Room |
2.00pm |
|
21/07/2022 |
Function Room |
2.00pm |
|
4/08/2022 |
Function Room |
2.00pm |
|
18/08/2022 |
Function Room |
2.00pm |
|
1/09/2022 |
Function Room |
2.00pm |
|
15/09/2022 |
Function Room |
2.00pm |
|
6/10/2022 |
Function Room |
2.00pm |
|
20/10/2022 |
Function Room |
2.00pm |
|
3/11/2022 |
Function Room |
2.00pm |
|
17/11/2022 |
Function Room |
2.00pm |
|
1/12/2022 |
Function Room |
2.00pm |
|
15/12/2022 |
Function Room |
2.00pm |
Wednesday 20 April 2022
Items of Business
Item Subject Page
01 Acknowledgement of Country........................................................................... 10
02 Apologies........................................................................................................ 10
03 Confirmation of Minutes................................................................................... 10
04 Disclosures of Interest..................................................................................... 14
05 DA2021 - 999.1 Dwelling and Swimming Pool Including a Clause 4.6 Objection to Clause 4.3 (Height of Building) of the Port Macquarie Hastings Local Environmental Plan 2011, Lot 3 DP 238250, No 5 Orr Street Port Macquarie........................................................... 18
06 DA2021 - 1047.1 Health Services Facility at Lot 1 DP 1273684, No 11 Ngamba Place, Bonny Hills................................................................................................................ 70
07 General Business
AGENDA Development Assessment Panel 20/04/2022
Item: 01
Subject: ACKNOWLEDGEMENT OF COUNTRY
"I acknowledge that we are gathered on Birpai Land. I pay respect to the Birpai Elders both past and present. I also extend that respect to all other Aboriginal and Torres Strait Islander people present."
Subject: APOLOGIES
RECOMMENDATION
That the apologies received be accepted.
Subject: CONFIRMATION OF PREVIOUS MINUTES
Recommendation
That the Minutes of the Development Assessment Panel Meeting held on 17 February 2022 be confirmed.
MINUTES
Development Assessment Panel Meeting
17/02/2022
PRESENT
Members:
David Crofts (Independent Chair)
Michael Mason (Independent Member)
Tony McNamara (Independent Member)
Group Manager Development Services (Dan Croft)
Other Attendees:
Mayor Peta Pinson
Councillor Josh Slade
Pat Galbraith-Robertson (Development Assessment Planning Coordinator)
Grant Burge (Development Engineering Coordinator)
Kate Kennedy (Building Surveyor)
Warren Wisemantel (Building Surveyor)
|
The meeting opened at 2:00pm. |
|
01 ACKNOWLEDGEMENT OF COUNTRY |
|
The Acknowledgement of Country was delivered. |
|
02 APOLOGIES |
|
Nil. |
|
03 CONFIRMATION OF MINUTES |
|
CONSENSUS: That the Minutes of the Development Assessment Panel Meeting held on 3 February 2022 be confirmed. |
|
04 DISCLOSURES OF INTEREST
|
|
There were no disclosures of interest presented. |
|
05 DA2021 - 889.1 Dwelling-house including Clause 4.6 Objection to Clause 4.3 (Height of Buildings) of the Port Macquarie-Hastings Local Environmental Plan 2011 at Lot 814 DP 1268080, No 10 Granton Ridge, Port Macquarie |
|
Speakers: Paul Timmins (opposing the development) Stephen McInerney (opposing the development) Boyd Ison (applicant)
CONSENSUS: That DA2021 - 889.1 for a dwelling-house including a Clause 4.6 objection to Clause 4.3 (height of buildings) of the Port Macquarie-Hastings Local Environmental Plan 2011 at Lot 814, DP 1268080, No. 10 Granton Ridge, PORT MACQUARIE, be determined by granting consent subject to the recommended conditions and as amended below:
|
|
06 DA2021 - 1092.1 Ancillary Building - Shed at Lot 32 DP 1239206, No 6 Oxbow Circuit King Creek |
|
Speakers: Craig Pickering (opposing the development) Rudy Ollevou (opposing the development) Ben Homes (applicant)
CONSENSUS: Noting that the applicant and neighbours have discussed an amended shed location, DA2021 -1092 be deferred to enable the applicant to submit amended plans generally as follows:
The amended plans be notified to the submitters and that where no significant concerns are raised, noting the DAP Charter, the matter be determined under staff delegation. |
|
07 GENERAL BUSINESS |
|
Nil. |
|
The meeting closed at 3:00pm. |
AGENDA Development Assessment Panel 20/04/2022
Item: 04
Subject: DISCLOSURES OF INTEREST
RECOMMENDATION
That Disclosures of Interest be presented
DISCLOSURE OF INTEREST DECLARATION
|
Name of Meeting:
|
|
|
Meeting Date:
|
|
|
Item Number:
|
|
|
Subject:
|
|
|
I, the undersigned, hereby declare the following interest:
Pecuniary:
Non-Pecuniary – Significant Interest:
Non-Pecuniary – Less than Significant Interest:
|
|
|
For the reason that:
|
|
|
Name:
Signed:
|
Date: |
|
Please submit to the Governance Support Officer at the Council Meeting.
|
|
(Refer
to next page and the Code of Conduct)
Pecuniary Interest
(a) your interest, or
(b) the interest of your spouse or de facto partner, your relative, or your partner or employer, or
(c) a company or other body of which you, or your nominee, partner or employer, is a shareholder or member.
(a) Your “relative” is any of the following:
i) your parent, grandparent, brother, sister, uncle, aunt, nephew, niece, lineal descendant or adopted child
ii) your spouse’s or de facto partner’s parent, grandparent, brother, sister, uncle, aunt, nephew, niece, lineal descendant or adopted child
iii) the spouse or de facto partner of a person referred to in paragraphs (i) and (i)
(b) “de facto partner” has the same meaning as defined in section 21C of the Interpretation Act 1987.
(a) if you are unaware of the relevant pecuniary interest of your spouse, de facto partner, relative, partner, employer or company or other body, or
(b) just because the person is a member of, or is employed by, a council or a statutory body, or is employed by the Crown, or
(c) just because the person is a member of, or a delegate of a council to, a company or other body that has a pecuniary interest in the matter, so long as the person has no beneficial interest in any shares of the company or body.
Non-Pecuniary
b) other relationships with persons who are affected by a decision or a matter under consideration that are particularly close, such as friendships and business relationships. Closeness is defined by the nature of the friendship or business relationship, the frequency of contact and the duration of the friendship or relationship.
c) an affiliation between the council official and an organisation (such as a sporting body, club, religious, cultural or charitable organisation, corporation or association) that is affected by a decision or a matter under consideration that is particularly strong. The strength of a council official’s affiliation with an organisation is to be determined by the extent to which they actively participate in the management, administration or other activities of the organisation.
d) membership, as the council’s representative, of the board or management committee of an organisation that is affected by a decision or a matter under consideration, in circumstances where the interests of the council and the organisation are potentially in conflict in relation to the particular matter
e) a financial interest (other than an interest of a type referred to in clause 4.6) that is not a pecuniary interest for the purposes of clause 4.1
f) the conferral or loss of a personal benefit other than one conferred or lost as a member of the community or a broader class of people affected by a decision.
a) by not participating in consideration of, or decision making in relation to, the matter in which you have the significant non-pecuniary conflict of interest and the matter being allocated to another person for consideration or determination, or
b) if the significant non-pecuniary conflict of interest arises in relation to a matter under consideration at a council or committee meeting, by managing the conflict of interest as if you had a pecuniary interest in the matter by complying with clauses 4.28 and 4.29.
SPECIAL DISCLOSURE OF PECUNIARY INTEREST DECLARATION
This form must be completed using block letters or typed.
If there is insufficient space for all the information you are required to disclose,
you must attach an appendix which is to be properly identified and signed by you.
|
By [insert full name of councillor] |
|
|
|
In the matter of [insert name of environmental planning instrument] |
|
|
|
Which is to be considered at a meeting of the [insert name of meeting] |
|
|
|
Held on [insert date of meeting] |
|
|
|
PECUNIARY INTEREST
|
||
|
Address of the affected principal place of residence of the councillor or an associated person, company or body (the identified land) |
|
|
|
Relationship of identified land to councillor [Tick or cross one box.] |
The councillor has interest in the land (e.g. is owner or has other interest arising out of a mortgage, lease, trust, option or contract, or otherwise). An associated person of the councillor has an interest in the land. An associated company or body of the councillor has interest in the land. |
|
|
MATTER GIVING RISE TO PECUNIARY INTEREST[1]
|
||
|
Nature of land that is subject to a change in zone/planning control by proposed LEP (the subject land 2 [Tick or cross one box] |
The identified land. Land that adjoins or is adjacent to or is in proximity to the identified land. |
|
|
Current zone/planning control [Insert name of current planning instrument and identify relevant zone/planning control applying to the subject land] |
|
|
|
Proposed change of zone/planning control [Insert name of proposed LEP and identify proposed change of zone/planning control applying to the subject land] |
|
|
|
Effect of proposed change of zone/planning control on councillor or associated person [Tick or cross one box] |
Appreciable financial gain. Appreciable financial loss. |
|
[If more than one pecuniary interest is to be declared, reprint the above box and fill in for each additional interest]
Councillor’s Signature: ………………………………. Date: ………………..
This form is to be retained by the council’s Chief Executive Officer and included in full in the minutes of the meeting
Last Updated: 3 June 2019
Important Information
This information is being collected for the purpose of making a special disclosure of pecuniary interests under clause 4.36(c) of the Model Code of Conduct for Local Councils in NSW (the Model Code of Conduct).
The special disclosure must relate only to a pecuniary interest that a councillor has in the councillor’s principal place of residence, or an interest another person (whose interests are relevant under clause 4.3 of the Model Code of Conduct) has in that person’s principal place of residence.
Clause 4.3 of the Model Code of Conduct states that you will have a pecuniary interest in a matter because of the pecuniary interest of your spouse or your de facto partner or your relative or because your business partner or employer has a pecuniary interest. You will also have a pecuniary interest in a matter because you, your nominee, your business partner or your employer is a member of a company or other body that has a pecuniary interest in the matter.
“Relative” is defined by clause 4.4 of the Model Code of Conduct as meaning your, your spouse’s or your de facto partner’s parent, grandparent, brother, sister, uncle, aunt, nephew, niece, lineal descendant or adopted child and the spouse or de facto partner of any of those persons.
You must not make a special disclosure that you know or ought reasonably to know is false or misleading in a material particular. Complaints about breaches of these requirements are to be referred to the Office of Local Government and may result in disciplinary action by the Chief Executive of the Office of Local Government or the NSW Civil and Administrative Tribunal.
This form must be completed by you before the commencement of the council or council committee meeting at which the special disclosure is being made. The completed form must be tabled at the meeting. Everyone is entitled to inspect it. The special disclosure must be recorded in the minutes of the meeting.
[1] Clause 4.1 of the Model Code of Conduct provides that a pecuniary interest is an interest that a person has in a matter because of a reasonable likelihood or expectation of appreciable financial gain or loss to the person. A person does not have a pecuniary interest in a matter if the interest is so remote or insignificant that it could not reasonably be regarded as likely to influence any decision the person might make in relation to the matter, or if the interest is of a kind specified in clause 4.6 of the Model Code of Conduct.
2 A pecuniary interest may arise by way of a change of permissible use of land adjoining, adjacent to or in proximity to land in which a councillor or a person, company or body referred to in clause 4.3 of the Model Code of Conduct has a proprietary interest
AGENDA Development Assessment Panel 20/04/2022
Item: 05
Subject: DA2021 - 999.1 Dwelling and Swimming Pool Including a Clause 4.6 Objection to Clause 4.3 (Height of Building) of the Port Macquarie Hastings Local Environmental Plan 2011, Lot 3 DP 238250, No 5 Orr Street Port Macquarie
Report Author: Development Assessment Planner, Steven Ford
|
Applicant: Karen Burke Registered Architect Owner: BP & RS Lulham Estimated Cost: $650,000 Parcel no: 15815 Alignment with Delivery Program 4.3.1 Undertake transparent and efficient development assessment in accordance with relevant legislation. |
That it be recommended to Council that DA 2021-999 for a Dwelling and Swimming Pool Including a Clause 4.6 Objection to Clause 4.3 (Height of Building) of the Port Macquarie Hastings Local Environmental Plan 2011 at Lot 3, DP 238250, No. 5 Orr Street, Port Macquarie, be determined by granting consent subject to the recommended conditions
Executive Summary
This report considers a development application for a Dwelling and Swimming Pool including a Clause 4.6 Objection to Clause 4.3 (Height of Building) of the Port Macquarie-Hastings Local Environmental Plan 2011 at the subject site and provides an assessment of the application in accordance with the Environmental Planning and Assessment Act 1979.
Following exhibition of the application, three (3) submissions were received.
The site is considered suitable for the proposed development and the proposal adequately addresses relevant planning controls. The development is not considered to be contrary to the public's interest and will not result a significant adverse social, environmental or economic impact.
This report recommends that the development application be referred to Council for approval subject to the attached conditions as outlined in Attachment 1.
The reason for the application being referred to Council’s Development Assessment Panel (DAP) is because the application includes a Clause 4.6 exception to a development standard under the Port Macquarie-Hastings Local Environmental Plan 2011. A copy of the DAP Charter outlining the delegations and functions of the DAP is available on Council’s website.
The application is required to be reported to a meeting of the Ordinary Council following consideration of the application by the DAP.
1. BACKGROUND
Existing Sites Features and Surrounding Development
The site has an area of 704.35m2.
The site is zoned R1 General Residential in accordance with the Port Macquarie-Hastings Local Environmental Plan 2011, as shown in the following zoning plan:
The existing subdivision pattern and location of existing
development within the locality is shown in the following aerial photograph:


2. DESCRIPTION OF DEVELOPMENT
Key aspects of the proposal include the following:
· Proposed Dwelling and Swimming Pool
· Clause 4.6 Objection to Clause 4.3 (Height of Building) of the Port Macquarie Hastings Local Environmental Plan
· Natural slope is from the street to the rear and falls approximately 12m.
Refer to Attachment 2 at the end of this report for plans of the proposed development.
Application Chronology
· 08 November 2021 - Application Lodged
· 18 November to 01 December 2021 - Public Notification - 3 submissions received
· 29 November 2021 - Additional information requested
· 22 December 2021 - Further additional information requested
· 7 January 2022 - Concurrence from RFS received
· 7 February 2022 - Amended Plans and Additional information received
· 1 March 2022 - Amended clause 4.6 objection and amended elevations received
· 20 March 2022 - Stormwater drainage and sewer reticulation strategy received
3. STATUTORY ASSESSMENT
Section 4.15(1) Matters for Consideration
In determining the application, Council is required to take into consideration the following matters as are relevant to the development that apply to the land to which the development application relates:
(a) The provisions (where applicable) of:
(i) Any Environmental Planning Instrument
State Environmental Planning Policy (Koala Habitat Protection) 2021
Clause 6 - This SEPP applies to all non-rural zoned land within the Port Macquarie-Hastings Local Government Area.
Clause 12 (other land - no KPoM and less than 1 hectare) - Having considered the SEPP, the application and on completion of a site inspection, Council is not prevented from granting consent in this case for the following reasons:
1. The property is not subject to a KPOM, or
2. The site is not considered to be core koala habitat.
State Environmental Planning Policy No. 55 - Remediation of Land
Following an inspection of the site and a search of Council records, the subject land is not identified as being potentially contaminated and is suitable for the intended use.
State Environmental Planning Policy (Coastal Management) 2018
Clause 7, this SEPP prevails over the Port Macquarie-Hastings LEP 2011 in the event of any inconsistency.
The site is not located within a coastal use area.
State Environmental Planning Policy (Building Sustainability Index: BASIX) 2004
A BASIX certificate has been submitted demonstrating that the proposal will comply with the requirements of the SEPP. It is recommended that a condition be imposed to ensure that the commitments are incorporated into the development and certified at Occupation Certificate stage.
State Environmental Planning Policy (Infrastructure) 2007
Clause 45 - Development in proximity to electricity infrastructure - referral to Essential Energy has been completed having regard for any of the following:
(a) the penetration of ground within 2m of an underground electricity power line or an electricity distribution pole or within 10m of any part of an electricity tower,
(b) development carried out:
(i) within or immediately adjacent to an easement for electricity purposes (whether or not the electricity infrastructure exists), or
(ii) immediately adjacent to an electricity substation, or
(iii) within 5m of an exposed overhead electricity power line,
(c) installation of a swimming pool any part of which is:
(i) within 30m of a structure supporting an overhead electricity transmission line, measured horizontally from the top of the pool to the bottom of the structure at ground level, or
(ii) within 5m of an overhead electricity power line, measured vertically upwards from the top of the pool.
Essential Energy have no specific concerns regarding the development, but have provided some general advice. The advice received from Essential Energy has been forwarded the Applicant for consideration.
Port Macquarie-Hastings Local Environmental Plan 2011
The proposal is consistent with the LEP having regard to the following:
· Clause 2.2 - The subject site is zoned R1 General Residential.
· Clause 2.3(1) and the R1 zone landuse table - The dwelling and ancillary structures to a dwelling is a permissible landuse with consent.
The objectives of the R1 zone are as follows:
o To provide for the housing needs of the community.
o To provide for a variety of housing types and densities.
o To enable other land uses that provide facilities or services to meet the day to day needs of residents.
· Clause 2.3(2) - The proposal is consistent with the zone objectives as it contributes to the range of housing options in the locality.
· Clause 4.3 - This clause establishes the maximum “height of a building” (or
building height) that a building may be built to on any parcel of land. The term
“building height (or height of building)” is defined in the LEP to mean:
“the vertical distance between ground level (existing) and the highest point of `the building, including plant and lift overruns, but excluding communication devices, antennae, satellite dishes, masts, flagpoles, chimneys, flues and the like”. The term “ground level (existing)” is also defined in the LEP to mean “the existing”.
(i)
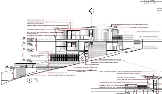
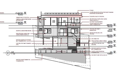
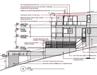
The building height limit for the site is identified on the Height of Buildings Map as being 8.5m. The proposed development (new works) exceed the height standard by 1.87m (at the northern covered deck) which represents a variation of 22%.
The attached elevation plans, demonstrate the areas of the building that exceed the height limit. It is noted by the elevations that it is small sections of the roofline where the land slopes away steeply, that result in the height variation.


In considering the height variation, compliance with the objectives of Clause 4.3 of the LEP have been considered below:
(a) to ensure that buildings are compatible with the height, bulk and scale of the existing and desired future character of the locality,
Comments:
The locality and Orr Street are characterised by a number of other dwellings with similar heights, due mainly to the steepness of the land.
A key aspect of this proposal is that it presents as a single storey dwelling to the street/public domain.
The proposed variation does not create any additional habitable floor levels above the height of building provisions.
Based on the above, the proposed height, bulk and scale of the development is considered compatible with the existing and future character of the locality.
(b) to minimise visual impact, disruption of views, loss of privacy and loss of solar access to existing development,
Comment:
The visual impact of the building is considered satisfactory for the following reasons:
- The main variations are located behind the front facade of the building and are therefore less distinctive from Orr Street.
- The building height is similar to the existing dwellings in the area and will therefore not be visually dominant.
- The variation is created by the land sloping steeply away from the street.
- Due to semi-open nature of the decks along the northern elevation to take advantage of views and solar access, the adjoining neighbours view is not disrupted by the height of building variation.
- Shadow diagram demonstrated the proposed variation does not create adverse any overshadowing.
- Potential privacy impacts are considered under the relevant DCP provisions below and have been satisfactorily addressed in the building design.
(c) to minimise the adverse impact of development on heritage conservation areas and heritage items,
Comment:
The site does not contain or directly adjoin any known heritage items or sites of significance.
(d) to nominate heights that will provide a transition in built form and land use intensity within the area covered by this Plan.
Comment:
The proposed height is consistent with other dwellings in the area and attempts to balance the site constraints of the topography. The variation does not compromise this intent of the standard.
In addition to the above, the applicant has lodged a written request in accordance with Clause 4.6 of the LEP objecting to the 8.5m building height standard applying to the site, which is established under Clause 4.3 (see comments below under Clause 4.6).
· Clause 4.4 - The floor space ratio of the proposal is 0.38:1, which complies with the maximum 0.65:1 floor space ratio applying to the site.
· Clause 4.6 - This clause establishes a degree of flexibility for certain development standards in certain circumstances which have demonstrated that a better planning outcome will occur from that flexibility.
In this regard, the proposal seeks a variation to the building height standard as identified under clause 4.3 of this report. Assistance on the approach to variation to this standard is also taken from NSW Land and Environment Court and NSW Court of Appeal decisions in:
1. Wehbe v Pittwater Council (2007) NSW LEC 827 (Wehbe);
2. Four2Five Pty Ltd v Ashfield Council (2015) NSWLEC 1009; and
3. Al Maha Pty Ltd v Huajun Investments Pty Ltd (2018) NSWCA 245
Having regard to specific requirements of clause 4.6(3) and 4.6(4) the following assessment comments are provided:
(3) Development consent must not be granted for development that contravenes a development standard unless the consent authority has considered a written request from the applicant that seeks to justify the contravention of the development standard by demonstrating:
(a) that compliance with the development standard is unreasonable or unnecessary in the circumstances of the case, and
(b) that there are sufficient environmental planning grounds to justify contravening the development standard.
The Applicant has submitted a request in writing - Refer Attachment 3 - to justify the contravention of the building height standard for the following reasons (as summarised):
1. Compliance with the development standard is unnecessary as the proposal has demonstrated to be consistent with the objectives of the height of buildings standard.
2. The natural slope of the site falls 12m over approximately 36m, from the front to the rear. To avoid extensive cut and fill, an elevated 2 level residence with a garage on a mid-level was considered an appropriate design solution.

(Above: North and West Elevations)
3. The height variation would not result in increased overshadowing of the adjoining properties as compared with a compliant proposal.
4. The height variation would not result in any additional loss of views across the site compared with a compliant proposal.
5. The development is considered to be a good contextual fit for an infill development and is consistent with the streetscape and bulk and scale outcomes envisaged for the area.
6. The height exceedance occurs at the rear of the existing 2-storey building due to the steepness of the slope and this part of the building will not be highly visible in the streetscape.
7. The height of building variation will not have an adverse impact to the public domain.
(4) Development consent must not be granted for development that contravenes a development standard unless:
(a) the consent authority is satisfied that:
(i) the applicant’s written request has adequately addressed the matters
required to be demonstrated by subclause (3), Having regard to: 3(a) that compliance with the development standard is unreasonable or unnecessary in the circumstances of the case:
In Wehbe ‘five methods’ have been developed to test whether a compliance with the standard is unreasonable or unnecessary.
1. The objectives of the height standard are achieved/not achieved notwithstanding the non-compliance with the numerical 8.5m height standard.
2. The underlying objective or purpose of the standard is/not relevant to the development and therefore compliance is unnecessary.
3. The underlying object or purpose would be/not be defeated or thwarted if compliance was required and therefore compliance is unreasonable.
4. The development standard hasn’t been virtually abandoned or destroyed by the Council’s own actions in granting a consent to the proposal departing from the 8.5m standard and hence compliance is unreasonable or unnecessary.
5. The zoning of the particular land is reasonable or appropriate so that a development standard appropriate for that zoning is also reasonable and necessary as it applies to the land.
The proposed variation relies upon the first test. It is considered that the Applicant’s written request has satisfactorily demonstrated that the proposed development will achieve the objectives of the height of building development standard despite the numerical non-compliance.
While it is acknowledged that consent has been granted for other buildings in the precinct that have exceeded the height controls they have been appropriately tested on merit in accordance with the provisions of Clause 4.6 and found to be acceptable.
Therefore, it is not considered that these decisions have abandoned or destroyed the integrity of the development standard. The decisions do, however, provide some context for how the development will fit into the locality.
The first method (1) is sufficient to establish that compliance with the development standard is unnecessary in the circumstances of the case.
Comments:
On the basis of the above, it is considered that the Applicant’s clause 4.6 variation
request has adequately addressed the matters required to be demonstrated by
clause 4.6(3).
(ii) the proposed development will be in the public interest because it is consistent with the objectives of the particular standard and the objectives for development within the zone in which the development is proposed to be carried out,
The consistency of the proposal with the zone objectives has been discussed above under Clause 2.3. Consideration of the proposal’s consistency with the objectives of height of buildings standard (Clause 4.3) is provided as follows: ‘
(a) To ensure that buildings are compatible with the height, bulk and scale of the existing and desired future character of the locality.
(ii) Comments:
In this regard, the proposed dwelling is similar in height, bulk and scale to other dwellings in the area and maintains an FSR below the numerical control and commensurate with other dwellings in the locality.
Although the variation is 22%, when viewed from the North and Western elevations of the proposal, the encroachment relates to a small section of the upper storey verandah roof.
The locality is characterised by a number of other residential buildings ranging in height from two to three storeys above ground level, mainly due to the steepness of the terrain and north-east views.
The floor space ratio for the proposal is below the maximum of 0.65:1 for the area.
The proposed height, bulk and scale of the development are considered compatible with the character of the locality in this regard.
(iii) (b) to minimise visual impact, disruption of views, loss of privacy and loss of solar access to existing development;
(iv) Comments:
The visual impact of the building is considered satisfactory for the following reason/s:
· Given the topography of the site and orientation of adjoining dwellings there will be no significant view sharing or overshadowing impacts.
· The proposal will not result in the disruption of any significant views. No submissions were received regarding concern for loss of views in the locality.
(v)
(c) to minimise the adverse impact of development on heritage conservation areas and heritage items;
(vi) Comments:
The site does not contain any known heritage items or sites of significance.
(d) to nominate heights that will provide a transition in built form and land use intensity within the area covered by this Plan.
(vii) Comments:
· The site is located within an established locality maintaining consistent zoning and numerical controls.
· The public benefit of the standard is not compromised by the proposed development.
· The development is consistent with the zoning and height objectives of the LEP 2011 and is unlikely to have any implications on State related issues or the broader public interest.
(b) the concurrence of the Secretary has been obtained.
(viii) Comments:
In accordance with Planning Circular PS 20-002, the Secretary’s concurrence can be assumed for development contravenes a numerical standard by greater than 10%. However, as the numerical variation being sort is 22%, this Application is required to be reported to the Development Assessment Panel, which then needs to be referred to an Ordinary meeting of Council for determination. A public register of variations is maintained and quarterly reporting made to the Department.
Based on the above, the development is consistent with the height control objectives and also the zoning objectives as discussed previously in this report. It is recommended that the Clause 4.6 variation to Clause 4.3 be supported.
· Clause 7.13 - Satisfactory arrangements are in place for provision of essential services including water supply, electricity supply, sewer infrastructure, stormwater drainage and suitable road access to service the development.
(ii) Any draft instruments that apply to the site or are on exhibition
No draft instruments apply to the site.
(iii) Any Development Control Plan in force
Port Macquarie-Hastings Development Control Plan 2013
|
DCP 2013: Part B - General Provisions - B2: Environmental Management |
|||
|
DCP Objective |
Development Provisions |
Proposed |
Complies |
|
3 |
a) Development must comply with Council’s Developments, Public Place & Events - Waste Minimisation and Management Policy. |
Satisfactory arrangements can be put in place for storage and collection of waste. Standard condition recommended for construction waste management. |
Yes |
|
Cut and Fill Regrading
|
|||
|
4 |
a) Development shall not exceed a maximum cut of 1.0m and fill of 1.0m measured vertically above the ground level (existing) at a distance of 1.0m outside the perimeter of the external walls of the building (This does not apply to buildings where such cut and fill is fully retained within or by the external walls of the building). |
Minimal earthworks are proposed. The site falls 12m from front to rear and the proposed retaining walls are proposed to be fully retaining within the building line, under the elevated terrace and pool areas.
To transition between to each level and create level useable private open space areas, elevated terraces are proposed with reinforced concrete block retaining walls to create useable level space with minimum cut that could impact adjoining properties.
The ground floor terrace on the western side of the dwelling has an area of fill greater than the 1m standard to 2.8m in height at the highest point directly below the terrace.
The design has minimised the use of excessive cut and fill by minimising the retaining walls to area directly below the proposed terraces.
The proposal does not adversely impacts drainage of adjoining properties and will somewhat reduce the water existing stormwater runoff. |
No, but considered acceptable due to the merits of the site. |
|
5 |
a) A certified practicing structural engineer must certify any retaining wall greater than 1.0m. |
Engineering detail is noted on proposed plans. A draft condition have also been included to confirm structural engineering for the retaining walls and footings prior to release of the Construction Certificate. |
No, but capable of being managed with recommended condition. |
|
b) Where a combination of a fence and a wall is proposed to be greater than 1.2m high: - be a maximum combined height of 1.8m above existing property boundary level; - be constructed up to the front boundary for a maximum length of 6.0m or 30% of the street frontage, whichever is less; − the fence component has openings which make it not less than 25% transparent; and − provide a 3m x 3m splay for corner sites, and - provide a 900mm x 900mm splay for vehicle driveway entrances. |
No Front fence proposed. |
N/A |
|
|
DCP 2013: Part B - General Provision - B3: Hazards Management |
|||
|
Bushfire Hazard Management
|
|||
|
18 |
a) APZs are to be located outside of environmental protection zones and wholly provided within private land. Note perimeter roads provided as part of a residential subdivision are classified as being part of the subdivision and not a separate permissible land use within environment protection zones. |
APZ not reliant on land beyond the road reserve. No identifiable adverse impacts.
|
Yes |
|
Flooding
|
|||
|
19 |
a) Development must comply with Council’s Floodplain Management Plan and Flood Policies. |
NA |
NA |
|
DCP 2013: Part B- General Provisions- B4: Transport, Traffic Management, Access and Car Parking |
|||
|
DCP Objective |
Development Provisions |
Proposed |
Complies |
|
Parking Provision
|
|||
|
24 |
a) Off-street Parking is provided in accordance with Table 3: - 1 parking space per each dwelling for dwelling-house. |
Proposal provides a double garage. |
Yes |
|
Parking Layout
|
|||
|
28 |
c) Parking spaces shall generally be behind the building line but may be located between the building line and the street when: − it is stacked parking in the driveway; or − it can be demonstrated that improvements to the open space provided will result; and − the spaces are screened (densely landscaped or similar) from the street by a landscaping with a minimum width of 3.0m for the entire length of the parking area. |
Proposed Garage is behind the building line. The proposed plans have also been amended to comply with minimum 4.5m building line front setback. However, the driveway length is limited to a 4.6m length inside of the front boundary to provide casual stacked parking opportunities on the driveway. |
Yes |
|
d) Parking design and layout is provided in accordance with AS/NZS 2890.1 - Parking facilities - Off-street car parking. |
Capable of complying. |
Yes |
|
|
34 |
a) All parking and manoeuvring spaces must be designed to avoid concentrations of water runoff on the surface. |
Residential driveway only, capable of complying. |
Yes |
|
b) Council will not permit the discharge of stormwater directly into kerbing and guttering or table drains for any development other than that of a minor nature. |
Capable of complying with appropriate driveway. |
yes |
|
|
DCP 2013: Part B - General Provisions - B5: Social Impact Assessment and Crime Prevention |
|||
|
DCP Objective |
Development Provisions |
Proposed |
Complies |
|
Crime Prevention
|
|||
|
43 |
a) The development addresses the generic principles of crime prevention: − Casual surveillance and sightlines; − Land use mix and activity generators; − Definition of use and ownership; − Basic exterior building design; − Lighting; − Way-finding; and − Predictable routes and entrapment locations; − as described in the Crime Prevention Through Environmental Design (CPTED) principles. |
No concealment or entrapment areas proposed. Adequate casual surveillance available. |
Yes |
|
DCP 2013: Part C - Development Specific Provisions - C1: Low Density Residential Development |
|||
|
DCP Objective |
Development Provisions |
Proposed |
Complies |
|
Front Setbacks
|
|||
|
a) Dwellings may incorporate an articulation zone to a street frontage at no less than 3m from property boundary. The following building elements are permitted within the articulation zone: − an entry feature or portico; − a balcony, deck, patio, pergola, terrace or verandah; − a window box treatment; − a bay window or similar feature; − an awning or other feature over a window; − a sun shading feature.
b) These building elements should not extend above the eave gutter line, other than a pitched roof to an entry feature or portico that has the same pitch as the roof on the dwelling house. |
Setback of 3m to elevated front porch.
Note there is a breeze block feature adjoining the entrance path, this is a balustrade due to the elevation, do not extend above the eave and somewhat characterised as a fence. This is considered acceptable based on the merit of the site and safety. |
Yes |
|
|
c) The primary road front setback shall be: Classified road = any frontage 6.0m Primary frontage = 4.5m Secondary frontage = 3.0m Ancillary Lane = 2.0m Large lot residential and rural zones = 10.0m |
The primary setback to a external wall of a habitable room is 6m and to the proposed garage external facing wall is 4.5m. |
Yes. |
|
|
45 |
a) A garage, carport or car parking space should:
|
The garage is setback more than 1m behind the Breeze block feature and front porch elements of the proposal.
The garage opening however, is only setback 4.6m. see justification below. |
No, but considered acceptable based on the site constraints. |
|
b) The total width of the garage/carport openings should not be more than 6m and not more than 50 per cent of the width of the building. |
Proposed garage opening is 5.5m and approximately 40% of the width of the building. |
Yes |
|
|
c) Driveway crossovers are no greater than 5.0m in width. |
Proposed 5m driveway. |
Yes |
|
|
d) Where a dual occupancy or attached dwelling is proposed on a corner lot a garage and driveway is provided on each road frontage. |
NA |
NA |
|
|
Side and Rear Setbacks
|
|||
|
46 |
a) A minimum rear boundary setback of 4m is to be provided to dwellings (including verandahs, patios and decks). |
Proposed rear setback of 4m to the elevated pool area. The proposed rear building line of the dwelling is 16.48m. |
Yes |
|
b) A minimum rear boundary setback of 900mm applies to sheds and swimming pools subject to achieving minimum required private open space area. |
Proposed pool is setback 4m. |
Yes |
|
|
c) Council may consider varying rear setback requirements where it is demonstrated that the private open space could achieve better solar access between the building and the side setback. In that instance, one side setback should be a minimum 4m in width (for an equivalent length of rear boundary, behind building line) and the rear setback may be reduced to 900mm. |
NA |
NA |
|
|
47 |
a) Ground floors (being <1m above existing ground level) should be setback a minimum of 900mm from side boundaries. |
Setbacks Eastern Boundary - 1.3m Western Boundary - 3m |
Yes |
|
b) First floors and above (including single storey with floor level >1m) should be setback a minimum of 3m from the side boundary, or reduced down to 900mm where it can be demonstrated that the adjoining property’s primary living rooms and principal private open space areas are not adversely overshadowed for more than 3hrs between 9am - 3pm on 21 June. |
First floor Setbacks Eastern Boundary - 3.05m Western Boundary - 3.08m
Note, the elevated terrace under the lower level is setback a minimum 190mm to 300mm from the western boundary. This is considered unacceptable due to bulk and scale, with a maximum height being 4.3m directly adjoining the proposed dwelling. It will be acceptable if the side setback achieved the minimum setback for a single level development, providing more separation and access for future maintenance. A condition has been recommended to amend plans prior to the release of the Construction Certificate. |
Acceptable when the western elevation of the terrace is increased to a 1m side setback. |
|
|
c) First floors and above should have building walls that step in and out at least every 12m by a minimum of 500mm articulation. Where first floors and above are setback >3m, wall articulation is not required. |
The external walls of the proposed building are well articulated with external finishes and no single span of wall exceeding 12m |
Yes |
|
|
Private Open Space
|
|||
|
48. |
a) All dwellings should have a minimum area of private open space of 35m2, which includes a principal private open space area with: − a minimum dimension of 4m x 4m, and − a maximum grade of 5% for minimum 4m x 4m of the total open space requirement, and − direct accessibility from a ground floor living area and orientated to maximise use. |
Suitable private open space is provided on lower terrace and pool area. There are multiple terraces that comply with the objectives of this clause. No adverse concerns. |
Yes |
|
|
b) Private open space may include clothes drying areas and garbage storage. |
Noted on plans adjoining lower level laundry. |
Yes |
|
Public Domain and Fencing
|
|||
|
49 |
a) Front fences built forward of the building line for the primary road frontage should be detailed on the development application plans. |
Note that a breeze block wall is proposed on along the front porch and entrance path. Due to site constraints the porch is elevated and a balustrade is required. This is not a front fence for the intent of this clause. |
NA |
|
b) Solid Front fences up to 1.2m high should be: − Setback 1.0m from the front boundary, and − Suitably landscaped to reduce visual impact, and − Provide a 3m x 3m splay for corner sites. |
NA |
NA |
|
|
b) Front fences proposed to be more than 1.2m high should be a maximum of 1.8m in height, above existing front property boundary level, and either: − Include landscaped recesses having minimum dimensions of 1.8m long x 900mm deep which occupy no less than 50% of the total length of the fence, or − be erected up to the front boundary for a maximum length of 6.0m or 50% of the street frontage, |
NA |
NA |
|
|
c) have openings which make it not less than 25% transparent (no individual opening more than 30mm wide); |
NA, but the breeze block construction will provide adequate transparency. |
NA |
|
|
d) provide a 3m x 3m splay for corner sites, and |
NA |
NA |
|
|
e) provide a 900mm x 900mm splay for vehicle driveway entrances. |
NA - adequate separation provided to driveway. |
Yes |
|
|
50 |
a) For tennis courts or other similar areas, chain wire fences should be black or dark green plastic coated mesh. |
NA |
NA |
|
b) Solid fences enclosing these facilities should not be permitted over 1.8m. |
NA |
NA |
|
|
Bulk and Scale
|
|||
|
51 |
a) Direct views between indoor living rooms and principal private open space of adjacent dwellings, including proposed dwellings approved on adjoining lots, including possible dwellings on future lots, should be obscured or screened where: − Ground and first floor (and above) indoor living room windows are within a 9m radius. − Direct views between principal private open space areas where within a 12m radius. − Direct views between indoor living rooms of dwellings into the principal area of private open space of other dwellings within a 12m radius. |
The development will not compromise privacy in the area due to a combination of lack of windows on relevant boundaries, use of obscure windows, high sill windows, limiting living areas/windows that face adjoining living areas/open space, compliant separation, fencing and use of screening to obscure views/direct views towards the rear boundary.
|
Yes |
|
b) A balcony, deck, patio, pergola, terrace or verandah should have a privacy screen where there are direct views of: − Indoor living room windows of adjacent dwellings, including proposed dwellings approved on adjoining lots within 9m radius; or − Principal areas of private open space of adjacent dwellings, including proposed dwellings approved on adjoining lots within a 12m radius. |
From certain areas on the elevated terraces and decks, some minimal side views into neighbouring open space areas will still be possible. However, the proposed screening directs the view more to the rear and such minimal side views would require a specific effort to look into the neighbouring properties.
Private open space adjoining the rear boundary are further than 12m from the proposed terrace and decks. The site is naturally more elevated than the adjoining developments. These areas appear to be screened for landscaping and there are no adverse impacts. |
Yes |
|
|
c) Privacy protection is not required for: − Any Indoor living room windows with a sill height of greater than 1.5m above the finished floor level of that room or where fixed non-openable translucent glass is installed to the same height. |
Refer to comments on 51(a) above. |
Yes |
|
|
d) Direct views described above may be reduced or obscured by one of the following measures (details to be submitted with the development application): − 1.8m high fence or wall between ground-floor level windows or between a dwelling and principal private open space − Screening of minimum 1.7m height, that has 25% openings (max), with no individual opening more than 30mm wide, is permanently fixed and is made of durable materials. − A window, the whole of which has translucent glass and is not able to be opened. |
Refer to comments on 51(a) above. |
Yes |
|
|
Roof Terraces
|
|||
|
52 |
a) Direct views between roof terraces and indoor living room windows or principal areas of private open space of adjacent dwellings should be screened where: − Ground and first floor (and above) indoor living room windows are within a 9m radius of the trafficable area of the roof terrace; Direct views between roof terraces principal areas of private open space within a 12m radius of the trafficable are of the roof terrace. |
NA |
NA |
|
b) Screening should only be considered where: − the height of the screen does not exceed the maximum building height; and − the screening contributes to the building form, and − the screening is integrated into the design of the roof; and − is constructed and designed with materials complementary to the building. |
NA |
NA |
|
|
c) Lighting installations on roof terraces should be: - contained within the roof terrace area and located at a low level, and - appropriately shaded and fixed in a non-adjustable manner so that light is projected downwards onto the floor surface of the terrace. − designed in compliance with Australian Standards AS4282 - Control of obtrusive effects of outdoor lighting. |
NA |
NA |
|
|
Ancillary Development
|
|||
|
56 |
a) For ancillary development in R1 General Residential, R2 Low Density Residential, R3 Medium Density Residential, R4 High Density Residential, R5 Large Lot Residential and RU5 Village zones: − The height of an outbuilding or the alterations and additions to an existing outbuilding on a lot should not be more than 4.8m above ground level (existing). − The building should be single storey construction with a maximum roof pitch of 24 degrees. − The maximum area of the building should be 60m2 for lots less than 900m² and maximum of 100m² for larger lots. − Ancillary development that is a garage, or an outbuilding, or a rainwater tank should not be located in front of the main building line with the exception of swimming pools. |
Proposed elevated pool is a maximum 3.02m high from natural ground level and less than 60m2. Generally, this complies with this clause.
Rainwater tanks and onsite stormwater detention generally complies. |
Yes |
The proposal seeks to vary Development Provision relating to clause 45 variation to minimum garage setback.
The relevant objectives are:
· To minimise the impact of garages and driveways on the streetscape, on street parking and amenity.
· To minimise the visual dominance of garages in the streetscape.
· To provide safe and functional vehicular access.
Having regard for the development provisions and relevant objectives, the variation is considered acceptable for the following reasons:
· The proposed garage is setback 4.6m from the front setback, creating a front setback consistent with front building line setback.
· The design was attempting to minimise the need for engineering and support of an elevated garage floor.
· The visual dominance towards the street scape has been minimised with proposed feature cladding and articulation of the front building line.
· The proposal is in keeping with the established character of Orr Street with many examples of garages being forward of the building line due to the site constraints.
· The submitted plans have been amended to provide a 4.5m setback which now provides casual stacked car parking between the building and the kerb.
· There are no residential properties adjoining the site across Orr Street.
· Based on the merit of the location at the end of Orr Street, the proposed variation will not add any adverse impacts to the proposed design or if the minimum garage setback of 5.5m was achieved.
Based on the above assessment, the variations proposed to the provisions of the DCP are considered acceptable and the relevant objectives have been satisfied. Cumulatively, the variations do not amount to an adverse impact of a significance that would justify refusal of the application.
(iiia) Any planning agreement that has been entered into under section 7.4, or any draft planning agreement that a developer has offered to enter into under section 7.4
No planning agreement has been offered or entered into relating to the site.
(iv) Any matters prescribed by the Regulations
Demolition of buildings AS 2601 - Clause 92
Demolition work on the site is capable of compliance with this Australian Standard and is recommended to be conditioned.
(b) The likely impacts of that development, including environmental impacts on both the natural and built environments, social and economic impacts in the locality
Context and Setting
The proposal will not have any significant adverse impacts on existing adjoining properties and satisfactorily addresses the public domain.
The proposal is considered to be compatible with other residential development in the locality and adequately addresses planning controls for the area.
The proposal does not have a significant adverse impact on existing view sharing.
The proposal does not have significant adverse lighting impacts.
There are no significant adverse privacy impacts.
There are no significant adverse overshadowing impacts. The proposal does not prevent adjoining properties from receiving 3 hours of sunlight to private open space and primary living areas on 21 June.
View Sharing
The overall notion of view sharing is invoked when a property enjoys existing views and a proposed development would share that view by taking some of it away for its own enjoyment. Taking all the view away cannot be called view sharing, although it may, in some circumstances, be quite reasonable.
Having considered the principles of NSW Land and Environment Court case law - Tenacity Consulting v Warringah 2004 NSW LEC 140 and following an inspection of the area, an assessment against the four (4) step process will be provided below to establish whether the view sharing is acceptable.
The four (4) steps are also listed below for context.
Step 1
Assessment of views to be affected. Water views are valued more highly than land views. Iconic views (e.g. of the Opera House, the Harbour Bridge or North Head) are valued more highly than views without icons. Whole views are valued more highly than partial views, e.g. a water view in which the interface between land and water is visible is more valuable than one in which it is obscured.
Step 2
Consider from what part of the property the views are obtained. For example, the protection of views across side boundaries is more difficult than the protection of views from front and rear boundaries. In addition, whether the view is enjoyed from a standing or sitting position may also be relevant. Sitting views are more difficult to protect than standing views. The expectation to retain side views and sitting views is often unrealistic.
Step 3
Assess the extent of the impact. This should be done for the whole of the property, not just for the view that is affected. The impact on views from living areas is more significant than from bedrooms or service areas (though views from kitchens are highly valued because people spend so much time in them). The impact may be assessed quantitatively, but in many cases this can be meaningless. For example, it is unhelpful to say that the view loss is 20% if it includes one of the sails of the Opera House. It is usually more useful to assess the view loss qualitatively as negligible, minor, moderate, severe or devastating.
Step 4
Assess the reasonableness of the proposal that is causing the impact. A development that complies with all planning controls would be considered more reasonable than one that breaches them. Where an impact on views arises as a result of non-compliance with one or more planning controls, even a moderate impact may be considered unreasonable. With a complying proposal, the question should be asked whether a more skilful design could provide the applicant with the same development potential and amenity and reduce the impact on the views of neighbours. If the answer to that question is no, then the view impact of a complying development would probably be considered acceptable and the view sharing reasonable.
On balance, whilst a design change may reduce the perceived impact from side facing windows of the adjoining development. The part of the proposed building that is impacting the views enjoyed across the current vacant land would be potentially blocked by a complying development building envelope on the subject lot. Note that the height of building variation discussed earlier in this report does not impact views from the adjoining developments.
The proposal is considered reasonable when reviewing compliance against key view sharing principle criteria for the immediate neighbours to the west (1-3 Orr Street). The proposed development complies with the side and rear setback requirements. It is also common to find 2-3 storey dwellings in the locality due to the site constraints so the bulk and scale are also considered reasonable. The proposal will not have any adverse view sharing impacts that would warrant refusal of the application and the proposal is considered acceptable.
Access, Traffic and Transport
The proposal will not have any significant adverse impacts in terms access, transport and traffic. The existing road network will satisfactorily cater for any increase in traffic generation as a result of the development.
Water Supply Connection
Service available – details required with Section 68 application.
An appropriate standard condition is recommended in this regard.
Sewer Connection
The proposed works are to be clear of the existing sewer junction and main traversing the site. The required distance off the junction is to be determined in relation to the depth.
The swimming pool is proposed over the sewer main traversing the site. This has been assessed as being acceptable subject to appropriate engineering design to be prepared prior to the issue of the Construction Certificate.
Service available - details required with Section 68 application.
An appropriate standard condition is recommended in this regard.
Stormwater
Service available - details required with Section 68 application.
An appropriate standard condition is recommended in this regard.
Other Utilities
Telecommunication and electricity services are available to the site.
Heritage
This site does not contain or adjoin any known heritage item or site of significance. The site is considered to be disturbed land.
Other land resources
The site is within an established urban context and will not sterilise any significant mineral or agricultural resource.
Water cycle
The proposed development will not have any significant adverse impacts on water resources and the water cycle.
Soils
The proposed development will not have any adverse impacts on soils in terms of quality, erosion, stability and/or productivity subject to a standard condition requiring erosion and sediment controls to be in place prior to and during construction.
Air and microclimate
The construction and/or operations of the proposed development will not result in any significant adverse impacts on the existing air quality or result in any pollution. Standard precautionary site management condition recommended.
Flora and fauna
Construction of the proposed development will not require any removal/clearing of any native vegetation and therefore does not trigger the biodiversity offsets scheme. Part 7 of the Biodiversity Conservation Act 2016 is considered to be satisfied.
Waste
Satisfactory arrangements are in place for proposed storage and collection of waste and recyclables. No adverse impacts anticipated. Standard precautionary site management condition recommended.
Energy
The proposal includes measures to address energy efficiency and will be required to comply with the requirements of BASIX.
Noise and vibration
The construction of the proposed development will not result in any significant adverse impacts on the existing air quality or result in any pollution. Standard precautionary site management condition recommended.
Bushfire
The site is identified as being bushfire prone.
The Applicant has submitted a bushfire report prepared by a Certified Consultant.
As the assessment has determined that a BAL 40/Flame Zone construction is required, and referral to the Local Rural Fire has been made. The RFS have reviewed the proposal and made recommendations which will be required to be imposed via conditions of consent.
Management of bushfire risk is acceptable subject to BAL construction levels being implemented and APZ being maintained. An appropriate condition is recommended.
Safety, security and crime prevention
The proposed development will be unlikely to create any concealment/entrapment areas or crime spots that would result in any identifiable loss of safety or reduction of security in the immediate area. Adequate casual surveillance is available.
Social impacts in the locality
Given the nature of the proposed development and its location the proposal is not considered to have any significant adverse social impacts.
Economic impact in the locality
The proposal is not considered to have any significant adverse economic impacts on the locality. A likely positive impact is that the development will maintain employment in the construction industry, which will lead to flow impacts such as expenditure in the area.
Site design and internal design
The proposed development design satisfactorily responds to the site attributes and will fit into the locality. Particularly having regard to the steep topography of the site.
Construction
Construction impacts are considered capable of being managed, standard construction and site management conditions have been recommended.
Cumulative impacts
The proposed development is not considered to have any significant adverse cumulative impacts on the natural or built environment or the social and economic attributes of the locality.
(c) The suitability of the site for the development
The proposal will fit into the locality and the site attributes are conducive to the proposed development.
Site constraints of bushfire, stormwater and slope have been adequately addressed and appropriate conditions of consent recommended.
(d) Any submissions made in accordance with this Act or the Regulations
Following exhibition of the application in accordance with the Community Participation Plan, three (3) submissions were received. The key issues raised are addressed below;
|
Submission Issue/Summary |
Planning Comment/Response |
|
The proposal in its current form does not comply with building height regulations of 8.5m. |
As discussed earlier in this report. The applicant submitted amended plans including a Clause 4.6 exception to Development Standard to Clause 4.3 (Height of Buildings) of the Port Macquarie-Hastings Local Environmental Plan 2011
The proposed development (new works) exceed the height standard by 1.87m (at the northern covered deck) which represents a variation of 22%. Key issues raised in the clause 4.6 exception is severe sight constraints due to slope, variation is only part of the roof line, proposed variation is not for additional habitable floor level, variation does not create adverse overshadow or view loss and is not out of character for the locality.
Based on the assessment, the variations proposed to the provisions of the DCP and the LEP 2011 are both considered acceptable and the relevant objectives have been satisfied. Cumulatively, the variations do not amount to an adverse impact of a significance that would justify refusal of the application. |
|
Variation to Side Setbacks - Western raised terrace is 190mm from the side boundary and elevated a maximum 2.8m. |
The lower terrace is elevated to create a level usable space to transition from the Lower level of the dwelling to the proposed pool area. The proposed terrace is a secondary outdoor area. The proposed elevated terrace does not have adverse overshadowing impacts, however, there is a perception of bulk, due to the proposed height of 2.8m and an additional 1.8m privacy screening.
In terms of the level of the terrace proposed, it is considered to be consistent with other sites in the area, due to the steep terrain.
The proposed side setback does appear to be unnecessary impact to the adjoining development as it is a side setback variation and will have future issues with regards to maintenance. Due to the size of the lower terrace, increasing the side setback will not impact the function of the secondary area.
As a mitigation measure, it is recommended that a condition be included to requires prior to the release of the construction certificate that the lower terrace be amended to provide a 1m side setback. |
|
The bulk and scale of the development along with inadequate setbacks results in unreasonable impacts on privacy and amenity. |
The proposed development complies with the floor space ratio complying to the site.
The height of building variation has been discussed earlier and is considered not out of character for the locality due to site constraints with various examples of similar variations.
Privacy impacts have been assessed in the DCP 2013 component of this report and considered compliant. It is considered that adequate design, implementation of privacy screening, window location and separation has softened the perceived impacts of an elevated site.
The proposed bulk and scale is considered consistent with the envisaged development of this locality. |
|
Access, traffic and manoeuvring |
The proposed plans have been amended to comply with the minimum front building line. The proposed garage is now setback 4.6m from the front boundary and has been considered acceptable earlier in this report. This provides more appropriate site lines for manoeuvring entering and exiting the garage.
With regards to site management, the construction management plan will need to included site access as part of the management. This should include adequate notification of road closures during construction. |
|
Visually prominent to the existing landscape and out of character |
Orr Street is one of the highest positioned residential areas within the locality. The built form of the locality is well established as buildings appearing to be 2 to 3 storey in height. The proposed development will not be out of character to the built form of adjoining residential developments along Orr street. There are no adverse impacts with regards to visual prominence to support refusal of this application. |
|
Stormwater disposal |
As discussed earlier in this report, stormwater management plans have been provided and provided with concurrence from Council’s stormwater engineers. The proposed roofline will drain to Orr street and the remaining catchment will drain to an onsite detention basin at the rear. This will improve the current overland flows experience. |
|
Concerned about the proposed development’s proximity to existing rubble/rock retaining wall on adjoining property. regarding structural impact and stormwater. |
The drainage and structure of the adjoining properties rumble retaining wall appears to have existing issues with regards to drainage and structural capacity. The proposed development has satisfied proposed stormwater drainage and overland flows; this should soften some of the existing issues.
The proposed swimming pool is proposed to be setback 4m from the rear boundary. Prior to the construction certificate engineering plans are to confirm the footings over the sewer line to support the elevated structure. Being over 4m from the boundary it is anticipated that this is capable of being outside of the zone of influence of the adjoining landscaping rubble retaining wall on the adjoining site.
Based on the above, the excavation, levels and associated impacts are acceptable and capable of being managed. |
(e) The Public Interest
The proposed development will be in the wider public interest with provision of appropriate additional housing.
The proposed development satisfies relevant planning controls and will not have any significant adverse impacts on the wider public interest.
Ecologically Sustainable Development and Precautionary Principle
Ecologically sustainable development requires the effective integration of economic and environmental considerations in decision-making processes.
The four principles of ecologically sustainable development are:
· the precautionary principle,
· intergenerational equity,
· conservation of biological diversity and ecological integrity,
· improved valuation, pricing and incentive mechanisms.
The principles of ESD require that a balance needs to be struck between the man-made development and the need to retain the natural vegetation. Based on the assessment provided in the report and with recommended conditions of consent, it is considered an appropriate balance has been struck.
Climate change
The proposal is not considered to be vulnerable to any risks associated with climate change.
4. DEVELOPMENT CONTRIBUTIONS APPLICABLE
The proposed development will comprise a new single dwelling and does not involve the creation of any additional residential component. As a result, s7.11 contributions do not apply.
5. CONCLUSION AND STATEMENT OF REASON
The application has been assessed in accordance with Section 4.15 of the Environmental Planning and Assessment Act 1979.
Issues raised during assessment and public exhibition of the application have been considered in the assessment of the application. Where relevant, conditions have been recommended to manage the impacts attributed to these issues.
The site is considered suitable for the proposed development and the proposal adequately addresses relevant planning controls. The development is not considered to be contrary to the public's interest and will not result a significant adverse social, environmental or economic impact. It is recommended that the application be approved, subject to the recommended conditions of consent provided in the attachment section of this report.
|
Attachments
1⇩. 2⇩. 3⇩. |
Item: 06
Subject: DA2021 - 1047.1 Health Services Facility at Lot 1 DP 1273684, No 11 Ngamba Place, Bonny Hills
Report Author: Development Assessment Planner, Steven Ford
|
Applicant: Ngamba Road Pty Ltd Owner: Ngamba Road Pty Ltd Estimated Cost: $4,463,000 Parcel no: 69414 Alignment with Delivery Program 4.3.1 Undertake transparent and efficient development assessment in accordance with relevant legislation. |
That DA2021 - 1047.1 for a Health Services Facility at Lot 1, DP 1273684, No. 11 Ngamba Place, Bonny Hills, be determined by granting consent subject to the recommended conditions.
Executive Summary
This report considers a development application for a Health Services Facility with ancillary pharmacy and kiosk at the subject site and provides an assessment of the application in accordance with the Environmental Planning and Assessment Act 1979.
Following exhibition of the application, ten (10) submissions were received.
The site is considered suitable for the proposed development and the proposal adequately addresses relevant planning controls. The development is not considered to be contrary to the public's interest and will not result a significant adverse social, environmental or economic impact.
This report recommends that the development application be approved subject to the attached conditions in Attachment 1.
The reason for the application being referred to Council’s Development Assessment Panel (DAP) is because three (3) or more objections to the proposal have been received. A copy of the DAP Charter outlining the delegations and functions of the DAP is available on Council’s website.
1. BACKGROUND
Existing Sites Features and Surrounding Development
The site has an area of 3,682.9m2.
The site is zoned R1 General Residential in accordance with the Port Macquarie-Hastings Local Environmental Plan 2011, as shown in the following zoning plan:

The existing subdivision pattern and location of existing development within the locality is shown in the following aerial photograph:

2. DESCRIPTION OF DEVELOPMENT
Key aspects of the proposal include the following:
· 2 Storey health services facility with ancillary pharmacy and café
· All vegetation proposed to be removed is consistent with the existing approval under DA2018/130.
· Approved 128 student childcare facility and manager’s residence component to DA2018/130 to be surrendered.
· Intersection of McGilvary Road and Ngamba Place to be upgraded.
· A footpath and kerb and gutter along the Ngamba Road frontage, as well as the installation of stormwater infrastructure
Refer to Attachment 2 at the end of this report for plans of the proposed development.
Application Chronology
· 25 November 2021 - Application received
· 08 December 2021 to 14 January 2022 - Public Notification Period
· 04 January 2022 - Essential Energy comments received
· 28 January 2022 - Request for Information sent to Applicant
· 08 March 2022 - Amended Plans, Stormwater management report and additional information received from Applicant
· 05 April 2022 - Tree clearing commenced under DA2018/130
3. STATUTORY ASSESSMENT
Section 4.15(1) Matters for Consideration
In determining the application, Council is required to take into consideration the following matters as are relevant to the development that apply to the land to which the development application relates:
(a) The provisions (where applicable) of:
(i) any Environmental Planning Instrument
State Environmental Planning Policy (Biodiversity and Conservation) 2021
Chapter 4 Koala Habitat Protection 2021
Clause 6 - This SEPP applies to all non-rural zoned land within the Port Macquarie-Hastings Local Government Area.
Clause 12 (other land - not subject to Clause 10 or 11) - Having considered the SEPP, the application and on completion of a site inspection, Council is not prevented from granting consent in this case for the following reasons:
1. The property is not subject to a KPOM, or
2. The site not considered to be core koala habitat.
3. the site does not have evidence or signs of a resident Koala, hence the loss of the current Koala food trees is not likely to lead to stress on any existing local population. The tree loss will be offset via planting of 6 Tallowwoods and other natives.
State Environmental Planning Policy No. 55 - Remediation of Land
Following an inspection of the site and a search of Council records, the subject land is not identified as being potentially contaminated and is suitable for the intended use.
State Environmental Planning Policy (Industry and Employment) 2021
Chapter 3 Advertising and Signage
The proposed development includes proposed advertising signage in the form of business/building identification on the Northern and Southern Façade and Driveway entrance.
Clause 7 - This SEPP prevails over the Port Macquarie-Hastings LEP 2011 in the event of any inconsistency.
The following assessment table provides an assessment checklist against the Schedule 1 requirements of this SEPP:
|
Applicable clauses for consideration |
Comments |
Satisfactory |
|
Clause 8(a) Consistent with objectives of the policy as set out in Clause 3(1)(a). |
Proposed signage is generally consistent with the aims and objectives of the SEPP. |
Yes |
|
Schedule 1(1) Character of the area. |
The character of the locality is primarily residential. The immediate street frontage of Ngamba Place. has large lot residential properties. No adverse impacts to character can be identified noting the signage is limited in scale. |
Yes |
|
Schedule 1(2) Special areas. |
NA |
NA |
|
Schedule 1(3) Views and vistas. |
There are no identifiable significant views or vistas from adjoining residential properties impacted by the proposed development that would support refusal. The proposal does not dominate the skyline or reduce quality vistas |
Yes |
|
Schedule 1(4) Streetscape, setting or landscape. |
The proposed signs are business identification purposes. One at the car park entry facing Ngamba Place, southern façade and northern façade. The signs do not protrude above the building and cause any adverse impacts. The signs will contribute to identify the building and land use. |
Yes |
|
Schedule 1(5) Site and building. |
The proposal is sympathetic to the scale of the building and respects the future character of the R1 land zoning. |
Yes |
|
Schedule 1(6) Associated devices and logos with advertisements and advertising structures. |
The signs have been kept minimal, do not advertise any products and do not require regular maintenance or safety platforms. |
Yes |
|
Schedule 1(7) Illumination. |
No flashing lights proposed.
Proposed Illumination is capable of being controlled by standard conditions. |
Yes |
|
Schedule 1(7) Safety. |
There are no adverse impacts to safety identifiable that could be caused by the proposed signage. |
Yes |
State Environmental Planning Policy (Transport and Infrastructure) 2021
Clause 45 - Development in proximity to electricity infrastructure - referral to Essential Energy has been completed having regard for any of the following:
(a) the penetration of ground within 2m of an underground electricity power line or an electricity distribution pole or within 10m of any part of an electricity tower,
(b) development carried out:
(i) within or immediately adjacent to an easement for electricity purposes (whether or not the electricity infrastructure exists), or
(ii) immediately adjacent to an electricity substation, or
(iii) within 5m of an exposed overhead electricity power line,
(c) installation of a swimming pool any part of which is:
(i) within 30m of a structure supporting an overhead electricity transmission line, measured horizontally from the top of the pool to the bottom of the structure at ground level, or
(ii) within 5m of an overhead electricity power line, measured vertically upwards from the top of the pool.
Essential Energy have no specific concerns regarding the development, but have provided some general advice. The advice received from Essential Energy has been forwarded the Applicant for consideration.
Port Macquarie-Hastings Local Environmental Plan 2011
The proposal is consistent with the LEP having regard to the following:
· Clause 2.2 - The subject site is zoned R1 General Residential.
· Clause 2.3(1) and the R1 zone landuse table - The proposed development for a Health Services Facilities with ancillary uses are permissible landuses with consent. The Applicant has demonstrated that the ancillary pharmacy and café will be ancillary to the primary proposed use. These additional facilities will predominately service clients and staff using the health services facility.
The objectives of the R1 zone are as follows:
o To provide for the housing needs of the community.
o To provide for a variety of housing types and densities.
o To enable other land uses that provide facilities or services to meet the day to day needs of residents.
· Clause 2.3(2) - The proposal is consistent and achieves the zone objectives
· Clause 4.3 - The maximum overall height of the building above ground level (existing) is 8.5 m which complies with the standard height limit of 8.5m applying to the site.
· Clause 4.4 - The floor space ratio of the proposal is 0.5:1, which complies with the maximum 0.65:1 floor space ratio applying to the site.
1. Note: The site has an area of 3,683m2 enabling a maximum floor area on
2. site of 2,393.95m2. The proposed building has a total floor area of
3. 1,198.71m2 (including vertical circulation areas).
· Clause 5.10 - Heritage. The site does not contain or adjoin any known heritage items or sites of significance.
· Clause 7.13 - Satisfactory arrangements are in place for provision of essential services including water supply, electricity supply, sewer infrastructure, stormwater drainage and suitable road access to service the development. Provision of electricity will be subject to obtaining satisfactory arrangements.
4.
(ii) Any draft instruments that apply to the site or are on exhibition
No draft instruments apply to the site.
(iii) Any Development Control Plan in force
Port Macquarie-Hastings Development Control Plan 2013
|
DCP 2013: Part B - General Provisions - B1: Advertising and Signage |
|||
|
DCP Objective |
Development Provisions |
Proposed |
Complies |
|
1 |
a) Signs primarily identifying products or services are not acceptable, even where relating to products or services available on that site. |
Application indicates that signs will be business identification sign only. |
Yes |
|
b) Signage is not permitted outside property boundaries except where mounted upon buildings and clear of pedestrians and road traffic. No signage is permitted upon light or power poles or upon the nature strip (the area between the property boundary and constructed roadway). Limited directional signage and “A” frame signage may separately be approved by Council under the Roads Act 1993 or section 68 of the Local Government Act 1993. |
Signs contained within property boundaries. |
Yes |
|
|
c) An on-building 'chalkboard' sign, for the purpose of describing services or goods for sale which vary on a regular basis generally should not be any larger than 1.5m2, and should contain a sign written heading indicating the premises to which it refers. |
N/A |
N/A |
|
|
d) On-premise signs should not project above or to the side of building facades |
Signs do not project above or to the sides of the fence or building facades. |
Yes |
|
|
2 |
a) Where there is potential for light spill from signage in a non-residential zone adjoining or adjacent to residential development, illuminated signage is to be fitted with a time switch to dim by 50% or turn off the light by 11pm each night, depending on the nature of the development. |
Signs not proposed to be illuminated or digital. |
N/A |
|
DCP 2013: Part B - General Provisions - B2: Environmental Management |
|||
|
DCP Objective |
Development Provisions |
Proposed |
Complies |
|
3 |
a) Development must comply with Council’s Developments, Public Place & Events - Waste Minimisation and Management Policy. |
The Statement of Environmental Effects indicates that medical waste will be collected by a private contractor within the north-west corner of the site.
A standard condition is recommended regarding the management of construction waste. |
Yes |
|
Cut and Fill Regrading
|
|||
|
4 |
a) Development shall not exceed a maximum cut of 1.0m and fill of 1.0m measured vertically above the ground level (existing) at a distance of 1.0m outside the perimeter of the external walls of the building (This does not apply to buildings where such cut and fill is fully retained within or by the external walls of the building). |
Site slopes from south to north by approximately 11m.
The application therefore seeks to provide a number of retaining walls to ensure suitable levels and grades for the building, car parking and access in between.
Retaining walls are proposed within the lot boundary and provide level car parking facilities and appropriate access circulation. |
No, but considered acceptable. See justification below. |
|
5 |
a) A certified practicing structural engineer must certify any retaining wall greater than 1.0m. |
None provided. However, a draft condition is proposed for structural engineering to be provided prior to the construction certificate. |
No, but capable of being managed by the recommended condition |
|
b) Where a combination of a fence and a wall is proposed to be greater than 1.2m high: - be a maximum combined height of 1.8m above existing property boundary level; - be constructed up to the front boundary for a maximum length of 6.0m or 30% of the street frontage, whichever is less; − the fence component has openings which make it not less than 25% transparent; and − provide a 3m x 3m splay for corner sites, and - provide a 900mm x 900mm splay for vehicle driveway entrances. |
N/A |
N/A |
|
|
DCP 2013: Part B - General Provision - B3: Hazards Management |
|||
|
DCP Objective |
Development Provisions |
Proposed |
Complies |
|
Bushfire Hazard Management
|
|||
|
18 |
a) APZs are to be located outside of environmental protection zones and wholly provided within private land. Note perimeter roads provided as part of a residential subdivision are classified as being part of the subdivision and not a separate permissible land use within environment protection zones. |
N/A - No bushfire management measures required. |
N/A |
|
b) Perimeter roads are to be provided to all urban areas adjoining environmental management areas and their buffers. Refer to Figure 2. |
N/A |
N/A |
|
|
Flooding
|
|||
|
19 |
a) Development must comply with Council’s Floodplain Management Plan and Flood Policies. |
All works associated with the proposed development are located above the flood planning level. |
N/A |
|
DCP 2013: Part B- General Provisions- B4: Transport, Traffic Management, Access and Car Parking |
||||
|
DCP Objective |
Development Provisions |
Proposed |
Complies |
|
|
Road Hierarchy
|
||||
|
23 |
a) New direct accesses from a development to arterial and distributor roads is not permitted. Routes should differ in alignment and design standard according to the volume and type of traffic they are intended to carry, the desirable traffic speed, and other factors. |
No direct access proposed from arterial or distributor roads proposed. |
Yes |
|
|
b) Existing direct accesses from a development to arterial and distributor roads are rationalised or removed where practical. |
N/A |
N/A |
||
|
c) Vehicle driveway crossings are minimal in number and width (while being adequate for the nature of the development), and positioned: − to avoid driveways near intersections and road bends, and − to minimise streetscapes dominated by driveways and garage doors, and − to maximise on-street parking. |
Proposed driveways are considered to be appropriately positioned and do not have any identifiable adverse impacts to the existing streetscape.
The proposed access crossovers have been reviewed by Council’s Development Engineers and are considered suitable. |
Yes |
||
|
Parking Provision
|
||||
|
24 |
a) Off-street Parking is provided in accordance with Table 3.
Health Facility - 3 per consultant + 1 per 2 employees for medical centres
Retail premises - 1 space per 30m2
Kiosks - Outside of commercial zones: 1 per 6m2 serviced floor area.
|
Health service facility - Total of Nine (9) F/T equivalent consultants. = 27 spaces
Total of twelve (12) employees/staff. = 6 spaces
Tenancy 2 (Pharmacy), total area of 89.01m2. = 3 spaces
Tenancy 1 (Kiosk), total area of 65m2. = 11 spaces Total required = 47 spaces
The submitted plans provide 47 spaces, including 4 accessible spaces, for the total development. This is considered to satisfy the objectives of this clause and minimum onsite car parking.
A condition is recommended requiring appropriate signposting/line marking to confirm the use of these spaces, and to ensure that the client parking remains available for use. |
Yes |
|
|
b) Where a proposed development does not fall within any of the listed definitions, the provision of on-site parking shall be supported by a parking demand study. |
N/A |
N/A |
||
|
c) Where a proposed development falls within more than one category Council will require the total parking provision for each category. |
Noted and has been considered above. |
N/A |
||
|
25 |
a) A development proposal to alter, enlarge, convert or redevelop an existing building, whether or not demolition is involved, shall provide the total number of parking spaces calculated from the schedule for the proposed use, subject to a credit for any existing deficiency, including any contributions previously accepted in lieu of parking provision. |
No parking credits applicable. |
N/A |
|
|
Parking Layout
|
|||
|
28 |
a) Visitor and customer parking shall be located so that it is easily accessible from the street. |
Proposed parking is considered to be easily accessible. The two car parks have two-way driveway entries off Ngamba Place appropriately located in the context of the streetscape. |
Yes |
|
b) Internal signage (including pavement markings) should assist customers and visitors to find parking and circulate efficiently and safely through a car park. |
The parking area is relatively small and wayfinding signage is not considered necessary. |
N/A |
|
|
c) Parking spaces shall generally be behind the building line but may be located between the building line and the street when: − it is stacked parking in the driveway; or − it can be demonstrated that improvements to the open space provided will result; and − the spaces are screened (densely landscaped or similar) from the street by a landscaping with a minimum width of 3.0m for the entire length of the parking area. |
Parking spaces are at either side of the proposed building. The proposed site plans indicate adequate landscaping is proposed between the car parking area sand the street.
The position of the carparks provides accessibility to each level and minimises the impact of the proposed development to the streetscape. |
Yes |
|
|
d) Parking design and layout is provided in accordance with AS/NZS 2890.1 - Parking facilities - Off-street car parking and AS 2890.6 - Off-street parking for individuals with a disability and AS/NZS 2890.2 - Parking facilities - Off-street commercial vehicle facilities. |
The proposal is capable of complying with AS2890. Standard conditions recommended requiring certification of the design and construction of the parking area. |
Yes |
|
|
e) Stack or tandem parking spaces will not be included in assessment of parking provision except where: − the spaces are surplus to that required; − in motor showrooms; − for home business; − for exhibition homes; − in car repair stations; − staff parking spaces are separately identified and delineated; − it is visitor parking associated with a dual occupancy multi dwelling and/or terrace housing, directly in front of the garage with a minimum depth of 5.5m. |
N/A |
N/A |
|
|
29 |
a) Parking is provided in accordance with AS/NZS 2890.1 - Parking facilities - Off-street car parking, AS/NZS 2890.2 - Parking facilities - Off-street commercial vehicle facilities, AS 1428 - Design for access and mobility and AS 2890.6 - Off-street parking for individuals with a disability. |
The proposal is capable of complying with AS2890. Standard conditions recommended requiring certification of the design and construction of the parking area. |
Yes |
|
Surface Finishes
|
|||
|
35 |
a) All parking and manoeuvring areas shall be constructed with a coarse base of sufficient depth to suit the amount of traffic generated by the development, as determined by Council. It shall be sealed with either bitumen, asphaltic concrete, concrete or interlocking pavers.
Preliminary details of construction materials for access and car parking areas shall be submitted with the development application. Detailed plans shall be prepared for the construction certificate by a practising qualified Civil Engineer. |
Sealed parking indicated on the plans. Condition recommended confirming this requirement. |
Yes |
|
b) In special cases (e.g. where traffic volumes are very low) Council may consider the use of consolidated unsealed gravel pavement for car parks. However, this should not be assumed and will need to be justified by the applicant at the Development Application stage. |
N/A |
N/A |
|
|
Drainage
|
|||
|
36 |
a) All parking and manoeuvring spaces must be designed to avoid concentrations of water runoff on the surface. |
Engineering plans provided. Standard conditions recommended requiring certification of the design and construction of stormwater drainage. |
Yes |
|
b) Council will not permit the discharge of stormwater directly into kerbing and guttering or table drains for any development other than that of a minor nature. |
No discharge to kerb and gutter proposed. |
Yes |
|
|
37 |
a) Car parking areas should be drained to swales, bio retention, rain gardens and infiltration areas. |
All runoff from parking areas to be directed to on-site detention facilities. |
Yes |
|
DCP 2013: Part B - General Provisions - B5: Social Impact Assessment and Crime Prevention |
|||
|
DCP Objective |
Development Provisions |
Proposed |
Complies |
|
Crime Prevention
|
|||
|
43 |
a) The development addresses the generic principles of crime prevention: - Casual surveillance and sightlines; - Land use mix and activity generators; - Definition of use and ownership; - Basic exterior building design; - Lighting; - Way-finding; and - Predictable routes and entrapment locations; - as described in the Crime Prevention Through Environmental Design (CPTED) principles. |
The proposal provides for a land use mix and activity generator, there will be an increase in casual surveillance during business hours and the building is capable of including security measures for other times.
The proposed development will be unlikely to create any concealment/entrapment areas or crime spots that would result in any identifiable loss of safety or reduction of security in the immediate area. |
Yes |
The proposal seeks to vary Development Provision relating to Clause 4 - earthworks exceeding the 1m standard.
The relevant objectives are:
· Minimise the extent of site disturbance caused by excessive cut and fill to the site.
· Ensure there is no damage or instability to adjoining properties caused by excavation or filling.
· Ensure that there is no adverse alteration to the drainage of adjoining properties.
· Ensure the privacy of adjoining dwellings and private open space are protected.
· Ensure that adequate stormwater drainage is provided around the perimeter of buildings and that overflow paths are provided.
Having regard for the development provisions and relevant objectives, the variation is considered acceptable for the following reasons:
· Along the eastern property boundary the site slopes from south to north falling 11.1 metres (SE corner RL 27.5m AHD down to NE corner RL 16.4m AHD).
· There are a number of retaining walls across the site to provide suitable grades for car parking, building footprint, pedestrian access and landscaping.
· The large proposed retaining wall is up to 3m in height on the southern part of the site between the boundary and car parking. This is the highest point of the site and the retaining wall is cut into the slope to provide suitable car parking grades.
· A servicing strategy has been prepared in support of the proposal ensuring that the existing and proposed stormwater is managed appropriately and is not impacted by the proposed retaining walls.
· The site is a corner allotment, the proposed retaining walls are not considered likely to detrimentally impact the adjoining properties.
· Setting down the southern car park will be beneficial to the streetscape, and reduce visibility of the car park from the adjoining housing to the east and south.
· The retaining walls are proposed to be set a minimum of 1m from the adjoining boundaries, providing sufficient room for landscaping treatment and drainage. Engineering detail will be required to be finalised prior to the Construction Certificate.
Based on the above assessment, the variations proposed to the provisions of the DCP are considered acceptable and the relevant objectives have been satisfied. Cumulatively, the variations do not amount to an adverse impact of a significance that would justify refusal of the application.
(iiia) Any planning agreement that has been entered into under section 7.4, or
any draft planning agreement that a developer has offered to enter into under section 7.4
No planning agreement has been offered or entered into relating to the site.
(iv) Any matters prescribed by the Regulations
N/A
(b) The likely impacts of that development, including environmental impacts on both the natural and built environments, social and economic impacts in the locality
Context and Setting
The site is located on the corner of Ngamba Place and Bundarra Way, Bonny Hills.
The site is located centrally in the context of Bonny Hills. The site is located in an area that is predominately occupied by residential dwellings. The immediate locality has undergone considerable development in recent years with residential development.
The proposal will not have significant adverse impacts to existing adjoining properties and satisfactorily addresses the public domain.
The setbacks for the proposed building are similar to residential development setbacks and considered appropriate.
The proposal is considered to be sufficiently compatible with other development in the locality and adequately addresses planning controls for the area.
The proposal does not have a significant adverse impact on existing views sharing.
The proposal does not have significant adverse lighting impacts.
There are no significant adverse privacy impacts.
There are no significant adverse overshadowing impacts. The proposal does not prevent adjoining properties from receiving 3 hours of sunlight to private open space and primary living areas on 21 June between the hours of 9am and 3pm.
Traffic and Transport
The site has road frontage to Ngamba Place on the West, and Bundarra Way to the South. Ngamba Place is a Council owned road consisting of an approximately 6.5m wide spray seal pavement with 0.3m gravel shoulders on each side. The road reserve is approximately 20m wide, and is classified by PMHC as a local access street. In accordance with Auspec table D1.5, a local road typically caters for up to 2000 vehicles per day.
Bundarra Way is a Council owned road consisting of an approximately 7m wide spray sealed pavement, within a 19m wide road reserve. Bundarra Way has type SM (rollover) kerb and gutter immediately to the east of the site and is classified as a local street.
In close proximity to the site, McGilvray Road is a sealed road approximately 9 metres in width and is classified as a Collector Road. In accordance with Auspec table D1.5, a collector road typically caters for up to 6000 vehicles per day.
Under a previously approved DA (2018-130), the site was granted consent to contain a 128 place Childcare Centre. A traffic assessment was prepared in support of this application, which identified that the Childcare Centre would generate potential peak vehicle trips of 103 (AM) and 90 (PM). This assessment was based on the RMS’ Guide and included SIDRA modelling which identified the intersection between McGilvray Road and Ocean Drive as experiencing the greatest impact from the proposed development.
The applicant noted in their Statement of Environmental Effects (SOEE) that relevant to the previous traffic assessment, the RMS’s Guide to Traffic Generating Development (2002) only provides traffic generation rates for extended hour’s medical centres. This proposal is not for an extended hour’s medical centre. The SOEE notes that the previous medical centre surveys carried out resulted in a variance in generation rates and states:
“The proposed medical centre will operate via appointment only during typical operating hours and is therefore considered unlikely to experience peaks similar to the previously approved childcare centre. Appointments will typically be 15 minutes to half an hour in length and it is therefore considered that traffic generation will be more consistent throughout the proposed opening hours.”
The submitted details have been reviewed as being satisfactory, and considers that the proposal will not have any significant adverse impacts in terms of access, transport and traffic, the existing road network will satisfactorily cater for any increase in traffic generation as a result of the development. It should be noted that the previous Traffic Impact Assessment of 2018 for the childcare centre, estimated that Ngamba place has 639 daily trips (Vehicles per day), significantly under the maximum of 2000 V/pd considered applicable for a local street.
Conditions have been imposed to construct intersection improvement works at the intersection of Ngamba Place & McGilvray Road. These works will help accommodate the safe access of vehicles due to the increase in traffic associated with the proposed development.
Site Frontage and Access
The proposal seeks to provide two (2) separate two-way driveway entries off Ngamba Place. (Note, there is a narrow parcel of private land between the proposed development and Bundarra Way)
The southern car park includes a circular movement pattern allowing forward in and forward out traffic movements. Similarly, the northern car park includes a turnaround bay to enable forward in and forward out traffic movements.
The southern driveway entrance is located approximately 30 metres from the corner of Bundarra Way, whilst the northern driveway entrance is approximately 75m from Bundarra Way and 90m from the intersection of Ngamba Place and McGilvray Road. The driveway locations are considered appropriate for the site. All accesses shall comply with Council AUSPEC and Australian Standards, and conditions have been recommended to reflect these requirements.
Due to the type and size of development, additional works are required to include:
· kerb and gutter along the full road frontage
· concrete footpath paving (minimum 1.2m wide) along the full frontage
Site plans submitted in support of the Development Application indicate above works have been included.
Parking and Manoeuvring
Plans submitted as a part of this application demonstrates the sites ability to accommodate a total of 47 spaces on-site including 4 disability compliant spaces. An emergency bay has also been provided.
Parking and driveway widths on site can comply with relevant Australian Standards (AS 2890) and conditions have been imposed to reflect these requirements.
Due to the type of development, car park circulation is required to enable vehicles to enter and exit the site in a forward manner without reversing or exiting the car parking facility whilst looking for a parking space internally. Site plans show adequate area is available and conditions have been recommended to reflect these requirements.
Water Supply Connection
The proposed development site is located at 11 Ngamba Place, Bonny Hills, on the corner of Bundarra way. There is an existing 20mm metered water service from the 100mm water mains on the same side of Ngamba Place. An application shall be made to Council to disconnect this service. Minimum 25mm water services are to be provided for Commercial developments and include an RPZ.
Final water service sizing will need to be determined by a hydraulic consultant to suit the development as well as addressing fire service coverage to AS 2419 and backflow protection.
Detailed plans will be required to be submitted for assessment with the S.68 application.
Appropriate conditions are recommended in this regard.
Sewer Connection
There is existing Council sewer located in the road reserve of Ngamba Place. This development exceeds 2ET and is required to discharge to a manhole. Manholes located in driveways shall require trafficable lids and any alterations to lid levels shall be in accordance with Aus-Spec. Details to be provided on the plans.
Detailed plans will be required to be submitted for assessment with the S.68 application.
Appropriate conditions are recommended in this regard.
Stormwater
The site naturally grades towards the northern boundary and is currently (un)serviced. The legal point of discharge for the proposed development is defined as direct connection into the proposed 375mm pipe along Ngamba Place.
A detailed site stormwater management plan will be required to be submitted for assessment with the S.68 application and prior to the issue of a CC.
In accordance with Councils AUSPEC requirements, the following must be incorporated into the stormwater drainage plan:
· On site stormwater detention facilities.
· Water quality controls
Appropriate conditions are recommended in this regard.
Other Utilities
Telecommunication and electricity services are available to the site.
Heritage
Following a site inspection (and a search of Council records), no known items of Aboriginal or European heritage significance exist on the property. No adverse impacts anticipated.
As a precaution, a condition of consent has been recommended that works are to cease in the unexpected event heritage items are found. Works can only recommence when appropriate approvals are obtained for management and/or removal of the heritage item.
Other land resources
The site is within an established urban context and will not sterilise any significant mineral or agricultural resource.
Water cycle
The proposed development will not have any significant adverse impacts on water resources and the water cycle.
Soils
The proposed development will not have any significant adverse impacts on soils in terms of quality, erosion, stability and/or productivity subject to a standard condition requiring erosion and sediment controls to be in place prior to and during construction.
Air and microclimate
The construction and/or operations of the proposed development will not result in any significant adverse impacts on the existing air quality or result in any pollution. Standard precautionary site management condition recommended.
Flora and fauna
The proposed development includes clearing of 3 primary koala food trees. However, it is noted that these trees have been cleared during the assessment under an existing approval (DA2018/130). The Biodiversity Offset Scheme doesn’t apply for the following reasons:
· The land isn’t identified on the Biodiversity Values Map;
· The extent of clearing is below the thresholds in Clause 7.2 of the Biodiversity Conservation Regulation 2017;
· The application of test of significance (5 Part Test) demonstrates that the development will not have a significant impact on biodiversity values.
· Offset planting is proposed with 6 koala food trees.
Conditions have been recommended requiring evidence of offset planting has been established prior to occupation.
Waste
Satisfactory arrangements are in place for proposed storage and collection of waste and recyclables. No adverse impacts anticipated. Standard precautionary site management condition recommended.
Energy
The proposal includes measures to address energy efficiency and will be required to comply with the requirements of Section J of the Building Code of Australia. No adverse impacts anticipated.
Noise and vibration
The construction and/or operations of the proposed development will not result in any significant adverse impacts on the existing air quality or result in any pollution. Standard precautionary site management condition recommended.
Noise during the operation of the health care facility will likely be generated from traffic movement, outdoor areas, patients and staff during the operating hours.
Noise emitted would be infrequent depending on time of day. Noise at the boundary of adjoining properties is likely to be acceptable levels having regard for the residential uses, the typical hours of operation, the site being within the proximity of a busy road (Ocean Drive).
Acoustic fencing in proposed adjoining the proposed car parks along the eastern boundary. This is consistent with the mitigation measure of the previous approval for a Childcare Facility. The plans also provide for acoustic screening for air conditioning units along the eastern elevation, to dampen external noise from plant equipment. This will be further managed by recommended conditions.
Bushfire
The site is identified as being bushfire prone. The site will be remain predominately cleared and will not require any special asset protection zones. In this regard, the proposed building is considered an infill development and Class 5 building, being
used by general medical practitioners and medical specialists, without leaving patients unconscious or non-ambulatory. The aims and objectives of the Planning for Bushfire Protection 2019 will be satisfied.
Safety, security and crime prevention
The proposed development will be unlikely to create any concealment/entrapment areas or crime spots that would result in any identifiable loss of safety or reduction of security in the immediate area. Adequate casual surveillance is available.
Social impacts in the locality
Given the nature of the proposed development and its location the proposal is not considered to have any significant adverse social impacts.
Economic impact in the locality
The proposal is not considered to have any significant adverse economic impacts on the locality. A likely positive impact is that the development will maintain employment, less reliance of travel for general medical appointments, which will lead to flow impacts such as expenditure in the area.
Site design and internal design
The proposed development design satisfactorily responds to the site attributes and will fit into the locality.
Construction
Construction impacts are considered capable of being managed, standard construction and site management conditions have been recommended.
Cumulative impacts
The proposed development is not considered to have any significant adverse cumulative impacts on the natural or built environment or the social and economic attributes of the locality.
(c) The suitability of the site for the development
The proposal will fit into the locality and the site attributes are conducive to the proposed development.
Site constraints of bushfire risk, access, slope and drainage have been adequately addressed and appropriate conditions of consent recommended.
(d) Any submissions made in accordance with this Act or the Regulations
Ten (10) written submissions were received following public exhibition of the application. Copies of the written submissions have been provided separately to members of the DAP.
Key issues raised in the submissions received and comments are provided as follows:
|
Submission Issue/Summary |
Planning Comment/Response |
|
Consideration of privacy screening on the staff rooms and verandah to the neighbouring dwellings to the east. |
The proposal includes a 3 metre wide verandah off the eastern elevation of the building to provide an external break out space for staff only and not for the general public or consultations. Given the nature it is anticipated that the use of the space will be infrequent. With respect to screening, the application seeks to provide a solid 1 metre high balustrade which will ensure that seated views to the east are obscured. The proposed 6.9 metre setback of the verandah from the eastern boundary is considered to suitable separation to the adjoining dwellings to the east and would generally comply with side and rear setbacks in the Port Macquarie Hastings Development Control Plan 2013. The application also seeks to provide a number of trees between the building and the eastern property boundary. These trees are detailed external works/planting plan. These trees are considered to provide suitable visual screening and positively contribute to the amenity once established. In addition, the nature of the use of the building is limited to the hours of operation and it will be unlikely used outside of these times. It is considered that that adequate design provisions have been included and the verandah is unlikely to cause significant adverse impact to privacy and amenity to adjoining dwellings. |
|
The presented plans identify the building structure is situated 9,929mm off the eastern boundary. This places the eastern consult windows and staff deck areas within a 12m radius of the principle areas of private open spaces of our dwelling. Clause 51 bulk and scale development provisions of the DCP 2013 have not been considered. |
Clause 51 is contained within the Low Density Residential Development section of the DCP and does not technically apply to the proposed medical centre. However, the Applicant notes that due to the nature of the proposed landuse, doctor/patient confidentiality typically applies to the medical centre. This includes ensuring consultation discussions are not overheard by neighbours and client privacy is maintained just as much as adjoining development. Further, the intent of Clause 51 of the DCP is to ‘protect the visual privacy of on-site and nearby residents’. As described above, the proposed setback coupled with the fencing and landscaping treatment is considered satisfactory to ensure that the proposed medical centre is consistent with the objective of this provision. |
|
Commercial premises and business premises are not permitted in R1 General Residential Zoning. A health facility is a “Business” therefore should be rejected by council. Please provide additional comment to the justification of a Healthcare Facility within a R1 zone. |
The subject site is zoned R1 General Residential zone and the proposed development for a Health Services Facility is a permissible landuse with consent. The proposed development is not characterised and specifically excluded as a business premises by the definition in the Port Macquarie Hastings Local Environmental Plan 2011. The Applicant has demonstrated that the Health Care Facility is the primary use and the Pharmacy and Café will be ancillary use to this primary use. |
|
Cafés and Kiosks are not permissible within R1 zones. In addition, outdoor door dining will increase opportunity for noise generation impacting the amenity of the area. |
The proposed kiosk is considered an ancillary use to the primary use, being the Health Services Facility (Medical Centre). The café and pharmacy is considered small scale will predominately service patients and staff, all likely to be from the immediate locality. The kiosk has been positioned not directly adjoining existing residence, addressing the lower car park and street frontage. The kiosk is considered unlikely to generate any detrimental noise impacts and will have limited service times. The Applicant anticipates the kiosk will be similar to the mobile food trailer at the Lake Cathie Medical Centre. However, it will be positioned within the building rather than a exempt mobile food trailer positioned on private land. |
|
A development of this scale this is far from the character of the streetscape with semi-rural properties fringe and general residential premises. The proposed development will have adverse impacts on the existing amenity. |
The bulk and scale if the proposed development is generally consistent with the childcare centre approved under DA2018/130 with regards to the building. The built form is considered less than the Floor Space Ratio provisions defined by the Port Macquarie Hastings Local Environmental Plan 2011. All side setbacks are considered consistent with the Port Macquarie Hastings Development Control Plan 2013. The proposal is considered to have a reduction in peak traffic and is considered not to have identifiably more adverse impacts regarding noise when compared to a childcare centre. |
|
The area will become busy and congested due to a major increase in continuous traffic throughout the day. |
The application seeks to undertake improvement works at the intersection of Ngamba Place and McGilvray Road to adequately manage traffic at the intersection. The application also seeks to provide kerb and guttering along the Ngamba Place frontage as well as within Bundarra Way. This will result in a slight widening of the sealed road surface and therefore improve traffic flow within the immediate area. |
|
Additional traffic will only be detrimental to the existing road surface and traffic concerns. With the extra traffic due to the development, and not being completely sealed, the water will continue to undermine both new and old works making it an ongoing maintenance issue. |
The Applicant seeks to provides intersection and road improvements, refer to comments above and earlier in this report. With respect to drainage and stormwater, the development seeks to manage stormwater such that pre and post development flows will not change. This will be managed by installation of kerb and guttering, extension of existing public piped stormwater network, and onsite detention. Council’s Stormwater Engineers have reviewed the engineering detail and support the proposal subject to conditions. |
|
Has there been owner’s consent regarding clearing of the narrow strip of land between the proposed development and Bundarra Way (Lot 102 DP1252124)? Confirm whether or not works proposed extend or impact this land |
The site is currently separated from Bundarra Way by Lot 102 DP1252124, which is a 1m wide allotment running for the full length of the subject site’s southern boundary. The Applicant is aware of this concern, advises that previous discussions with the landowner regarding purchase were not successful. The proposal therefore does not extend onto to this land. |
|
The location of the parking area entry and exit is a traffic safety issue due to its proximity to Bundarra Way. There are many near misses with the way it is now, due to sightlines. With the increase in traffic, it makes it unsafe for the road user along with the patients entering and exiting the facility. What traffic safety measures have been considered for the corner of Bundarra Way and Ngamba Place? |
The site is currently vacant and there are no formal driveway crossovers. The proposed driveway to the southern car park is 30m from the corner of Ngamba Place and Bundarra Way. The location is considered to have appropriate separation to the intersection with regards to sightlines. The nature of traffic the traffic is limited to 50km/h speed limit, and vehicles should slow entering the corner should have enough time to react to vehicles entering and exiting the proposed development. As discussed earlier in this report, kerb and guttering and pedestrian path will be provided for the entire frontage of this site which will improve road safety. |
|
Traffic exiting Bundarra way consistently cross to the wrong side of the road and travel too fast which is a menace itself. The anticipated overflow of vehicles from the proposal making it even more dangerous to all road users, especially those of the immediate neighbourhood. |
As discussed earlier, the proposed development does not adjoin Bundarra Way and access to the site is restricted to Ngamba Place. The proposed development complies with the minimum off street car parking spaces required when the Health Care Facility is operating at capacity of health care professionals and ancillary uses. The concern raised regarding the dangerous corner, appears to be an existing issue which will not be adversely affected. Following the development of the site and Ngamba Place, regular road users will become more aware and naturally slow down. |
|
The small upgrades on the proposed healthcare facility side do nothing to increase the overall long-standing issues of services, fully curbed road, paths, or lighting. Has there been consideration towards upgrading both sides of Ngamba Place. |
The proposed development seeks to provide the following improvements within the public road reserve: · Line-marking and raised median at the intersection of Ngamba Place and McGilvray Road, · Upgrading of the eastern side of Ngamba Place to include a wider road surface and upright kerb and gutter, · Improved piped stormwater network for the full length of the sites Ngamba Place frontage, and · Installation of a 1.2m wide concrete footpath for the full length of the sites Ngamba Place frontage. It is noted that the other side of Ngamba Place is zoned R1 General Residential and is capable of being development. At which time the other side of Ngamba Place will be upgraded with kerb and guttering. The application does not seek to undertake works to the western side of Ngamba Place. |
|
The off street car parking justification seems to underestimate the number of consultants. If the centre is fully staffed and tenanted the off street car parking provided with be insufficient. |
As discussed earlier in this report, the proposed car parking proposed complies with the numerical requirements of the Port Macquarie Hastings Development Control Plan 2013.
|
|
Based on the proposed use of the tenants on the ground floor a total of 24 car spaces has been identified as being required, with 11 required for the kiosk alone. However, the total 4 separate tenancies on the lower ground will be serviced directly by 11 car spaces only. The concern is that patrons would not utilise the car spaces on the southern end of the site (that provide access to the upper floor of the development) as it would not be convenient to do so. The concern is that people attending the premises will opt to park on the street. |
Both car parking areas will be available for use by all tenancies and clients. There will be no dedicated or restricted parking spaces for health care professionals. The number of spaces provided on-site is consistent with the numerical requirements of the Port Macquarie-Hastings Development Control Plan 2013. It is also noted that the allied health services offered on the lower floor level will be complimentary to the primary use, being the medical centre. As such, it is considered likely that the majority of patrons will utilise the larger, upper level car park and will use the internal lift and stairs to access the lower level services. The design provides access to car parking for both of the proposed levels. If no parking was provided at the northern end, then it would be likely that people would park on the street to access the lower level. The proposed plans demonstrate that suitable access is provided between each level. Additionally, the development provisions require a minimum of on-site parking space and does not require the spaces to be evenly distributed with regards to direct access. Refusal of the application on parking grounds would be unjustifiable. |
|
There are many examples of similar healthcare facilities not catering for enough off street car parking. Concerns regarding overflow car parking will substantially increase the risk of accidents due to the narrowness of Ngamba Place and increased on street car parking. |
As outlined earlier in this report and in the above comments, the proposed off-street parking is consistent with the numerical requirements of the Port Macquarie-Hastings Development Control Plan 2013. |
|
With no room available for future expansion of car park in the development, and, with the current increase in demand for medical services with the increase of population in the area, it is predicted that vehicle parking will overflow to Ngamba Place and become a long-term concern. |
The proposed number of consultants and support staff is limited and is proposed to be conditioned in the draft consent. The proposed number of car parking spaces comply with the requirements of the Port Macquarie Hastings Development Control Plan 2013. No further consideration is required for future expansion. |
|
Please confirm stormwater consideration have been considered in the design and that it will not undermine properties to the east. |
An engineering servicing strategy has been provided and been reviewed by Council’s Development Engineers and Stormwater Engineers as being acceptable. See additional comments earlier in this report. |
|
Issue of noise emanating from the development will have adverse impacts to adjoining residential development from air conditioning and plant equipment. |
The Applicant has amended the proposed plans to indicate the location of air conditioning units within the eastern portion of the site. These units are proposed to be surrounded by an acoustic screen and located within the landscaped garden area to ensure visual amenity. This is demonstrated on the plans and will be conditioned to be installed prior to occupation and standard conditions. |
|
It is noted that a condition of the childcare centre D.A. was for acoustic lining or fencing for the eastern boundary of 11 Ngamba Place and that this would be beneficial for all interested parties if required on the eastern and northern boundary of the development site. |
The provision of acoustic lining or fencing along the eastern boundary adjacent to the proposed car parks, in a manner similar to the previous consent, has been accepted by the Applicant. This is considered to include 15m along the northern-most portion of the eastern boundary fence (refer Figure 3) and 45m along the southern-most portion of the eastern boundary fence (refer Figure 4).
Figure 4: Proposed location of the acoustic lining or fencing (dashed blue line) along the southern most portion of the eastern boundary fence. This is proposed to be managed in the recommended conditions to be clearly demonstrated on the plans prior to the Construction Certificate and installed prior to Occupation. |
|
Concern of noise generation from the proposed coffee shop and outdoor waiting area. |
The location of the proposed kiosk within the medical centre is not considered likely to generate any detrimental noise impacts. The location of the café in the context of the site is not directly adjoining residential development. The Café is an ancillary use for patients and staff of the primary use. As discussed earlier, the use of the café in envisaged to be similar to the mobile food trailer at the Lake Cathie Medical Centre. The café is not proposed to be a restaurant or food and drink premises with extended hours. The proposed café is unlikely to generate any additional adverse impact that have not been considered as part of the primary proposed use. |
|
Lighting impacts to adjoining residential dwellings has not been considered. |
The proposed business identification signage has no proposed lighting. The proposal seeks to operate during normal business hours (Monday to Friday 8am to 5pm and Saturdays 9am to 12noon). It is therefore considered unlikely that the site would be illuminated outside of these hours. There are no adverse lighting impacts that cannot be managed or lead to refusal of this application. |
|
Has there been consideration of directional signs and No parking zones. |
The application does not seek to provide any signage within Ngamba Place or change the current parking provisions. Internal directional signage will be provided in accordance with the relevant Australian Standards. |
|
Has a landscaping plan been included? Replaced landscaping with more than the proposed plan. Native shrubs should also be required. Shrubs such as Callistemon and Banksias would serve to both encourage native birds, be in keeping with the surrounds, and better screen an unsightly car park. |
Landscaping plans have been provided and are considered consistent with the Port Macquarie Hastings Development Control Plan 2013. Planting of native vegetation is encouraged and understood to be the intent of the Applicant. |
(e) The Public Interest
The proposed development satisfies relevant planning controls and will not have any significant adverse impacts on the wider public interest.
Ecologically Sustainable Development and Precautionary Principle
Ecologically sustainable development requires the effective integration of economic and environmental considerations in decision-making processes.
The four principles of ecologically sustainable development are:
· the precautionary principle,
· intergenerational equity,
· conservation of biological diversity and ecological integrity,
· improved valuation, pricing and incentive mechanisms.
The principles of ESD require that a balance needs to be struck between the man-made development and the need to retain the natural vegetation. Based on the assessment provided in the report and with recommended conditions of consent, it is considered an appropriate balance has been struck.
Climate change
The proposal is not considered to be vulnerable to any risks associated with climate change.
4. DEVELOPMENT CONTRIBUTIONS APPLICABLE
· Development contributions will be required towards augmentation of town water supply and sewerage system head works under Section 64 of the Local Government Act 1993.
· Development contributions will be required in accordance with Section 7.12 of the Environmental Planning and Assessment Act 1979.
· A copy of the contributions estimate is included as Attachment 3.
5. CONCLUSION AND STATEMENT OF REASON
The application has been assessed in accordance with Section 4.15 of the Environmental Planning and Assessment Act 1979. Issues raised during assessment and public exhibition of the application have been considered in the assessment of the application. Where relevant, conditions have been recommended to manage the impacts attributed to these issues.
The site is considered suitable for the proposed development and the proposal adequately addresses relevant planning controls. The development is not considered to be contrary to the public's interest and will not result a significant adverse social, environmental or economic impact. It is recommended that the application be approved, subject to the recommended conditions of consent provided in the attachment section of this report.
|
Attachments
1⇩. 2⇩. 3⇩. |