Development Assessment Panel
Business Paper
|
date of meeting: |
|
Wednesday 6 July 2022 |
|
location: |
|
Function Room Port Macquarie-Hastings Council 17 Burrawan Street Port Macquarie |
|
time: |
|
2:00pm |
CHARTER
To assist in managing Council's development assessment function by providing independent, transparent and expert determinations of development applications that fall outside of staff delegations.
· To review development application reports and conditions. The focus of the Panel’s review is to be on those issues raised in submissions received following exhibition of development applications;
· To determine development applications where there are 3 or more unique submissions or where an application is outside of staff delegations;
· To refer development applications to Council for determination where necessary;
· To provide a forum for objectors and applicants to make submissions on applications before the Development Assessment Panel (DAP);
· To maintain transparency in the determination of development applications.
Pursuant to Section 377 of the Local Government Act, 1993 delegation to:
· Determine development applications under Part 4 of the Environmental Planning and Assessment Act 1979 having regard to the relevant environmental planning instruments, development control plans and Council policies.
· Vary, modify or release restrictions as to use and/or covenants created by Section 88B instruments under the Conveyancing Act 1919 in relation to development applications for subdivisions being considered by the panel.
· Determine Koala Plans of Management under State Environmental Planning Policy 44 - Koala Habitat Protection associated with development applications being considered by the Panel.
Noting the trigger to escalate decision making to Council as highlighted in section 5.2.
3.1 Voting Members
· Three (3) independent external members will be selected for each scheduled DAP meeting from an appointed pool of members. One of the independent external members to be the Chairperson. Independent members will be rostered onto meeting on a rotational basis where possible.
· Group Manager Development Assessment (alternate - Director Development and Environment or Development Assessment Planning Coordinator).
The independent external members shall have expertise in one or more of the following areas:
planning, architecture, heritage, the environment, urban design, economics, traffic and transport, law, engineering, government and public administration.
Not applicable.
· Members must act faithfully and diligently and in accordance with this Charter.
· Members must comply with Council's Code of Conduct.
· Except as required to properly perform their duties, DAP members must not disclose any confidential information (as advised by Council) obtained in connection with the DAP functions.
· Members will have read and be familiar with the documents and information provided by Council prior to attending a DAP meeting.
· Members must act in accordance with Council's Workplace Health and Safety Policies and Procedures.
· External members of the Panel are not authorised to speak to the media on behalf of Council. Council officers that are members of the Committee are bound by the existing operational delegations in relation to speaking to the media.
The independent external members will be appointed for the term of Four (4) years or until such time as an expression of interest process to source Panel members is completed for the proceeding four (4) year term.
· A pool of independent external members (including the Chair) shall be appointed by the Chief Executive Officer following an external Expression of Interest process. Previous Panel members are eligible to be reappointed on the Panel following this expression of interest process.
· Independent members will be rostered on to Panel meetings on a rotational basis where possible to suit Panel member availability and Panel operational needs.
· Staff members on the Panel shall be appointed by the Chief Executive Officer.
· The Development Assessment Panel will generally meet on the 1st and 3rd Thursday each month at 2.00pm at the Port Macquarie offices of Council.
· Special Meetings of the Panel may be convened by the Director Development and Environment with three (3) days’ notice.
5.1 Meeting Format
· At all meetings of the Panel the Chairperson shall occupy the Chair and preside. The Chair will be responsible for keeping of order at meetings.
· Meetings shall be open to the public.
· The Panel will hear from an applicant and objectors or their representatives. Speakers are required to register to speak by close of business on the day prior to the Panel meeting.
· The Panel shall have the discretion to ask the applicant and objectors questions relating to the proposal and their submission. There is no ‘right of reply’ for an objector or applicant.
· Where there are a large number of persons making submissions with common interests, the Panel shall have the discretion to hear a representative of those persons rather than multiple persons with the same interest.
· Council assessment staff will be available at Panel meetings to provide technical assessment advice and assistance to the Panel.
· Where considered necessary, the Panel will conduct site inspections prior to the meeting.
· Decisions are to be made by consensus. Where consensus is not possible on any item, that item is to be referred to Council for a decision.
· All development applications involving a proposed variation to a development standard greater than 10% under Clause 4.6 of the Local Environmental Plan will be considered by the Panel and recommendation made to the Council for a decision.
Three (3) members must be present at a meeting to form a quorum.
Independent Chair (alternate - independent member).
· The Director Development and Environment is to be responsible for ensuring that the Panel has adequate secretariat support. The secretariat will ensure that the business paper and supporting papers are circulated at least three (3) days prior to each meeting. Minutes shall be appropriately approved and circulated to each member within three (3) weeks of a meeting being held.
· The format of and the preparation and publishing of the Business Paper and Minutes shall be similar to the format for Ordinary Council Meetings.
Minutes will be limited to the recording of decisions only and how each member votes for each item before the Panel.
Not applicable.
· Members of the Panel must comply with the applicable provisions of Council’s Code of Conduct. It is the personal responsibility of members to comply with the standards in the Code of Conduct and regularly review their personal circumstances with this in mind.
· Panel members must declare any conflict of interest at the start of each meeting or before discussion of a relevant item or topic. Details of any conflicts of interest are to be appropriately minuted. Where members are deemed to have a real or perceived conflict of interest, it may be appropriate they be excused from deliberations on the issue where the conflict of interest may exist. A Panel meeting may be postponed where there is no quorum.
All parties in attendance at a DAP meeting shall conduct
themselves respectfully ie. not disrupt the conduct of the meeting, not
interject, act courteously and with compassion and empathy and sensitivity and
will not insult, denigrate or make defamatory or personal reflections on or
impute improper motives to the DAP, Council staff or other members of the
public.
Development Assessment Panel
ATTENDANCE REGISTER
|
Member |
18/11/21 |
16/12/21 |
3/2/22 |
17/2/22 |
20/4/22 |
4/5/22 |
|
David Crofts |
X |
X |
X |
X |
X |
X |
|
Michael Mason |
X |
X |
X |
X |
|
|
|
Chris Gee |
X |
|
X |
|
X |
|
|
Tony McNamara |
|
X |
|
X |
X |
X |
|
Dan Croft (Group Manager Development Services) |
X |
X |
X |
X |
X |
X |
|
Grant Burge (Development Engineering Coordinator) |
X |
X |
X |
X |
X |
|
|
Patrick Galbraith-Robertson (Development Planning Coordinator) |
X |
X |
X |
X |
X |
X |
Key: P = Present
A = Absent With Apology
X = Absent Without Apology
Meeting Dates for 2022
|
20/01/2022 |
Function Room |
2.00pm |
|
3/02/2022 |
Function Room |
2.00pm |
|
17/02/2022 |
Function Room |
2.00pm |
|
2/03/2022 |
Function Room |
2.00pm |
|
16/03/2022 |
Function Room |
2.00pm |
|
6/04/2022 |
Function Room |
2.00pm |
|
20/04/2022 |
Function Room |
2.00pm |
|
4/05/2022 |
Function Room |
2.00pm |
|
18/05/2022 |
Function Room |
2.00pm |
|
1/06/2022 |
Function Room |
2.00pm |
|
15/06/2022 |
Function Room |
2.00pm |
|
6/07/2022 |
Function Room |
2.00pm |
|
20/07/2022 |
Function Room |
2.00pm |
|
3/08/2022 |
Function Room |
2.00pm |
|
17/08/2022 |
Function Room |
2.00pm |
|
7/09/2022 |
Function Room |
2.00pm |
|
21/09/2022 |
Function Room |
2.00pm |
|
5/10/2022 |
Function Room |
2.00pm |
|
19/10/2022 |
Function Room |
2.00pm |
|
2/11/2022 |
Function Room |
2.00pm |
|
16/11/2022 |
Function Room |
2.00pm |
|
7/12/2022 |
Function Room |
2.00pm |
Development Assessment Panel Meeting
Wednesday 6 July 2022
Items of Business
Item Subject Page
01 Acknowledgement of Country............................................................................. 9
02 Apologies.......................................................................................................... 9
03 Confirmation of Minutes..................................................................................... 9
04 Disclosures of Interest..................................................................................... 13
05 DA2022 - 304.1 Alterations and Additions to Dwelling at Lot 46 DP 807508, No 19 The Fairway, Port Macquarie................................................................................................ 17
06 DA2022 - 294.1 Multi Dwelling Housing and Strata Subdivision Resulting in 2 Semi-detached Dwellings and a Dwelling House at Lot 183 DP 1063157, No 30 Ericson Place, Port Macquarie...................................................................................................................... 55
07 General Business
AGENDA Development Assessment Panel 06/07/2022
Item: 01
Subject: ACKNOWLEDGEMENT OF COUNTRY
"I acknowledge that we are gathered on Birpai Land. I pay respect to the Birpai Elders both past and present. I also extend that respect to all other Aboriginal and Torres Strait Islander people present."
Subject: APOLOGIES
RECOMMENDATION
That the apologies received be accepted.
Subject: CONFIRMATION OF PREVIOUS MINUTES
Recommendation
That the Minutes of the Development Assessment Panel Meeting held on 1 June 2022 be confirmed.
MINUTES
Development Assessment Panel Meeting
01/06/2022
PRESENT
Members:
David Crofts (Independent Chair)
Chris Gee (Independent Member)
Tony McNamara (Independent Member)
Pat Galbraith-Robertson (Development Assessment Planning Coordinator)
Other Attendees:
Grant Burge (Development Engineering Coordinator)
Clint Tink (Development Assessment Planner)
Chris Gardiner (Development Assessment Planner)
|
The meeting opened at 2:02pm |
|
01 ACKNOWLEDGEMENT OF COUNTRY |
|
The Acknowledgement of Country was delivered.
|
|
02 APOLOGIES |
|
CONSENSUS: That the apology received from Dan Croft (Group Manager Development Services) be accepted. |
|
03 CONFIRMATION OF MINUTES |
|
Recommendation That the Minutes of the Development Assessment Panel Meeting held on 4 May 2022 be confirmed. |
|
04 DISCLOSURES OF INTEREST
|
|
Tony McNamara declared a Non-Pecuniary - Less than Significant Interest in Item 6, the reason being Mr McNamara was previously a Town Planner with Hastings Council who assessed an application for the original Birdon slipway.
Pat Galbraith-Robertson declared a Non-Pecuniary - Less than Significant Interest in Item 6, the reason being Mr Galbraith-Robertson was the assessing Planner for the previous application for DA2004 - 526.3 which was determined on 6 May 2020.
Chris Gee declared a Non-Pecuniary - Less than Significant Interest in Item 6, the reason being Mr Gee’s parents owned property at Crescent head adjacent to Birdon family members. |
|
05 DA2021 - 1190.1 Change of Use - Dwelling to Medical Centre and Construction of Associated Carpark at Lot 8 DP 264025, 2 Siren Road, Port Macquarie |
|
Speakers: Michael Matthews (opposing the application) Peter Willard (opposing the application) Geraldine Haigh (applicant)
CONSENSUS: That DA2021 - 1190.1 for a change of use - dwelling to medical centre and construction of associated carpark at Lot 8, DP 264025, No. 2 Siren Road, Port Macquarie, be determined by granting consent subject to the recommended conditions.
|
|
|
|
06 DA2021 - 1023.1 Alterations and Additions to Industrial Building (Boat Building and Repair Facility) at Lot 17 DP 1191370, No 10 Glen Ewan Road, Sancrox |
|
Speakers: Jeffrey Lutze (opposing the application) Terrance Stafford (applicant) Peter Bereicua (applicant),
CONSENSUS: That DA 2021 - 1023.1 for Alterations and Additions to an Industrial Building (Boat Building and Repair Facility) at Lot 17, DP 1191370, No. 10 Glen Ewan Road, Sancrox, be determined by granting consent subject to the recommended conditions and as amended below:
At other times, the western sliding door is permitted to be opened and closed for reasons of deliveries and boat/hull flipping only when no manufacturing and/or fabrication works/processes are being carried out or are occurring within the western shed. The door may remain open during times of a flood risk emergency. |
|
|
|
07 GENERAL BUSINESS |
|
NIL |
|
The meeting closed at 3:49pm |
AGENDA Development Assessment Panel 06/07/2022
Item: 04
Subject: DISCLOSURES OF INTEREST
RECOMMENDATION
That Disclosures of Interest be presented
DISCLOSURE OF INTEREST DECLARATION
|
Name of Meeting:
|
|
|
Meeting Date:
|
|
|
Item Number:
|
|
|
Subject:
|
|
|
I, the undersigned, hereby declare the following interest:
Pecuniary:
Non-Pecuniary – Significant Interest:
Non-Pecuniary – Less than Significant Interest:
|
|
|
For the reason that:
|
|
|
Name:
Signed:
|
Date: |
|
Please submit to the Governance Support Officer at the Council Meeting.
|
|
(Refer
to next page and the Code of Conduct)
Pecuniary Interest
(a) your interest, or
(b) the interest of your spouse or de facto partner, your relative, or your partner or employer, or
(c) a company or other body of which you, or your nominee, partner or employer, is a shareholder or member.
(a) Your “relative” is any of the following:
i) your parent, grandparent, brother, sister, uncle, aunt, nephew, niece, lineal descendant or adopted child
ii) your spouse’s or de facto partner’s parent, grandparent, brother, sister, uncle, aunt, nephew, niece, lineal descendant or adopted child
iii) the spouse or de facto partner of a person referred to in paragraphs (i) and (i)
(b) “de facto partner” has the same meaning as defined in section 21C of the Interpretation Act 1987.
(a) if you are unaware of the relevant pecuniary interest of your spouse, de facto partner, relative, partner, employer or company or other body, or
(b) just because the person is a member of, or is employed by, a council or a statutory body, or is employed by the Crown, or
(c) just because the person is a member of, or a delegate of a council to, a company or other body that has a pecuniary interest in the matter, so long as the person has no beneficial interest in any shares of the company or body.
Non-Pecuniary
b) other relationships with persons who are affected by a decision or a matter under consideration that are particularly close, such as friendships and business relationships. Closeness is defined by the nature of the friendship or business relationship, the frequency of contact and the duration of the friendship or relationship.
c) an affiliation between the council official and an organisation (such as a sporting body, club, religious, cultural or charitable organisation, corporation or association) that is affected by a decision or a matter under consideration that is particularly strong. The strength of a council official’s affiliation with an organisation is to be determined by the extent to which they actively participate in the management, administration or other activities of the organisation.
d) membership, as the council’s representative, of the board or management committee of an organisation that is affected by a decision or a matter under consideration, in circumstances where the interests of the council and the organisation are potentially in conflict in relation to the particular matter
e) a financial interest (other than an interest of a type referred to in clause 4.6) that is not a pecuniary interest for the purposes of clause 4.1
f) the conferral or loss of a personal benefit other than one conferred or lost as a member of the community or a broader class of people affected by a decision.
a) by not participating in consideration of, or decision making in relation to, the matter in which you have the significant non-pecuniary conflict of interest and the matter being allocated to another person for consideration or determination, or
b) if the significant non-pecuniary conflict of interest arises in relation to a matter under consideration at a council or committee meeting, by managing the conflict of interest as if you had a pecuniary interest in the matter by complying with clauses 4.28 and 4.29.
SPECIAL DISCLOSURE OF PECUNIARY INTEREST DECLARATION
This form must be completed using block letters or typed.
If there is insufficient space for all the information you are required to disclose,
you must attach an appendix which is to be properly identified and signed by you.
|
By [insert full name of councillor] |
|
|
|
In the matter of [insert name of environmental planning instrument] |
|
|
|
Which is to be considered at a meeting of the [insert name of meeting] |
|
|
|
Held on [insert date of meeting] |
|
|
|
PECUNIARY INTEREST
|
||
|
Address of the affected principal place of residence of the councillor or an associated person, company or body (the identified land) |
|
|
|
Relationship of identified land to councillor [Tick or cross one box.] |
The councillor has interest in the land (e.g. is owner or has other interest arising out of a mortgage, lease, trust, option or contract, or otherwise). An associated person of the councillor has an interest in the land. An associated company or body of the councillor has interest in the land. |
|
|
MATTER GIVING RISE TO PECUNIARY INTEREST[1]
|
||
|
Nature of land that is subject to a change in zone/planning control by proposed LEP (the subject land 2 [Tick or cross one box] |
The identified land. Land that adjoins or is adjacent to or is in proximity to the identified land. |
|
|
Current zone/planning control [Insert name of current planning instrument and identify relevant zone/planning control applying to the subject land] |
|
|
|
Proposed change of zone/planning control [Insert name of proposed LEP and identify proposed change of zone/planning control applying to the subject land] |
|
|
|
Effect of proposed change of zone/planning control on councillor or associated person [Tick or cross one box] |
Appreciable financial gain. Appreciable financial loss. |
|
[If more than one pecuniary interest is to be declared, reprint the above box and fill in for each additional interest]
Councillor’s Signature: ………………………………. Date: ………………..
This form is to be retained by the council’s Chief Executive Officer and included in full in the minutes of the meeting
Last Updated: 3 June 2019
Important Information
This information is being collected for the purpose of making a special disclosure of pecuniary interests under clause 4.36(c) of the Model Code of Conduct for Local Councils in NSW (the Model Code of Conduct).
The special disclosure must relate only to a pecuniary interest that a councillor has in the councillor’s principal place of residence, or an interest another person (whose interests are relevant under clause 4.3 of the Model Code of Conduct) has in that person’s principal place of residence.
Clause 4.3 of the Model Code of Conduct states that you will have a pecuniary interest in a matter because of the pecuniary interest of your spouse or your de facto partner or your relative or because your business partner or employer has a pecuniary interest. You will also have a pecuniary interest in a matter because you, your nominee, your business partner or your employer is a member of a company or other body that has a pecuniary interest in the matter.
“Relative” is defined by clause 4.4 of the Model Code of Conduct as meaning your, your spouse’s or your de facto partner’s parent, grandparent, brother, sister, uncle, aunt, nephew, niece, lineal descendant or adopted child and the spouse or de facto partner of any of those persons.
You must not make a special disclosure that you know or ought reasonably to know is false or misleading in a material particular. Complaints about breaches of these requirements are to be referred to the Office of Local Government and may result in disciplinary action by the Chief Executive of the Office of Local Government or the NSW Civil and Administrative Tribunal.
This form must be completed by you before the commencement of the council or council committee meeting at which the special disclosure is being made. The completed form must be tabled at the meeting. Everyone is entitled to inspect it. The special disclosure must be recorded in the minutes of the meeting.
[1] Clause 4.1 of the Model Code of Conduct provides that a pecuniary interest is an interest that a person has in a matter because of a reasonable likelihood or expectation of appreciable financial gain or loss to the person. A person does not have a pecuniary interest in a matter if the interest is so remote or insignificant that it could not reasonably be regarded as likely to influence any decision the person might make in relation to the matter, or if the interest is of a kind specified in clause 4.6 of the Model Code of Conduct.
2 A pecuniary interest may arise by way of a change of permissible use of land adjoining, adjacent to or in proximity to land in which a councillor or a person, company or body referred to in clause 4.3 of the Model Code of Conduct has a proprietary interest
AGENDA Development Assessment Panel 06/07/2022
Item: 05
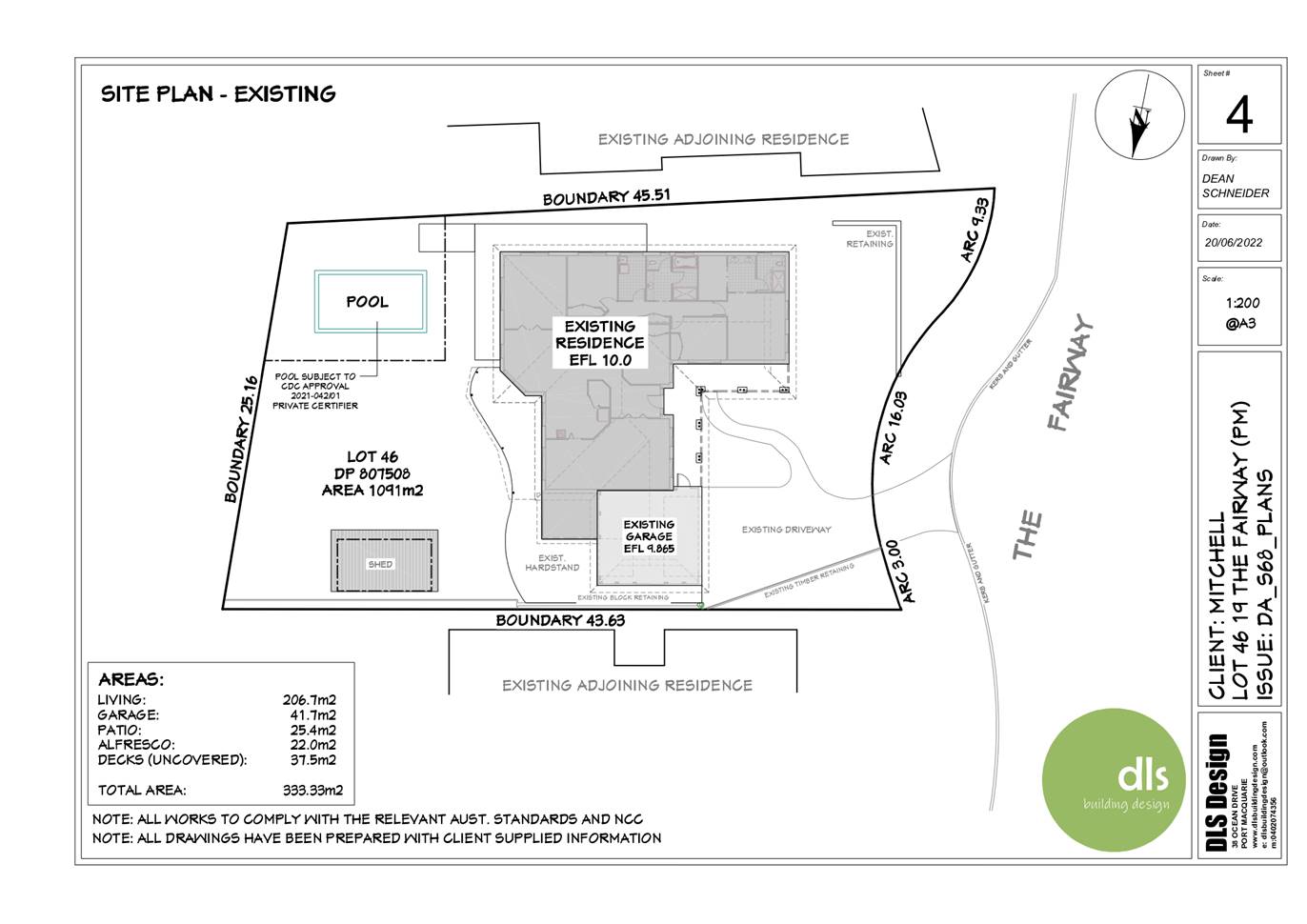
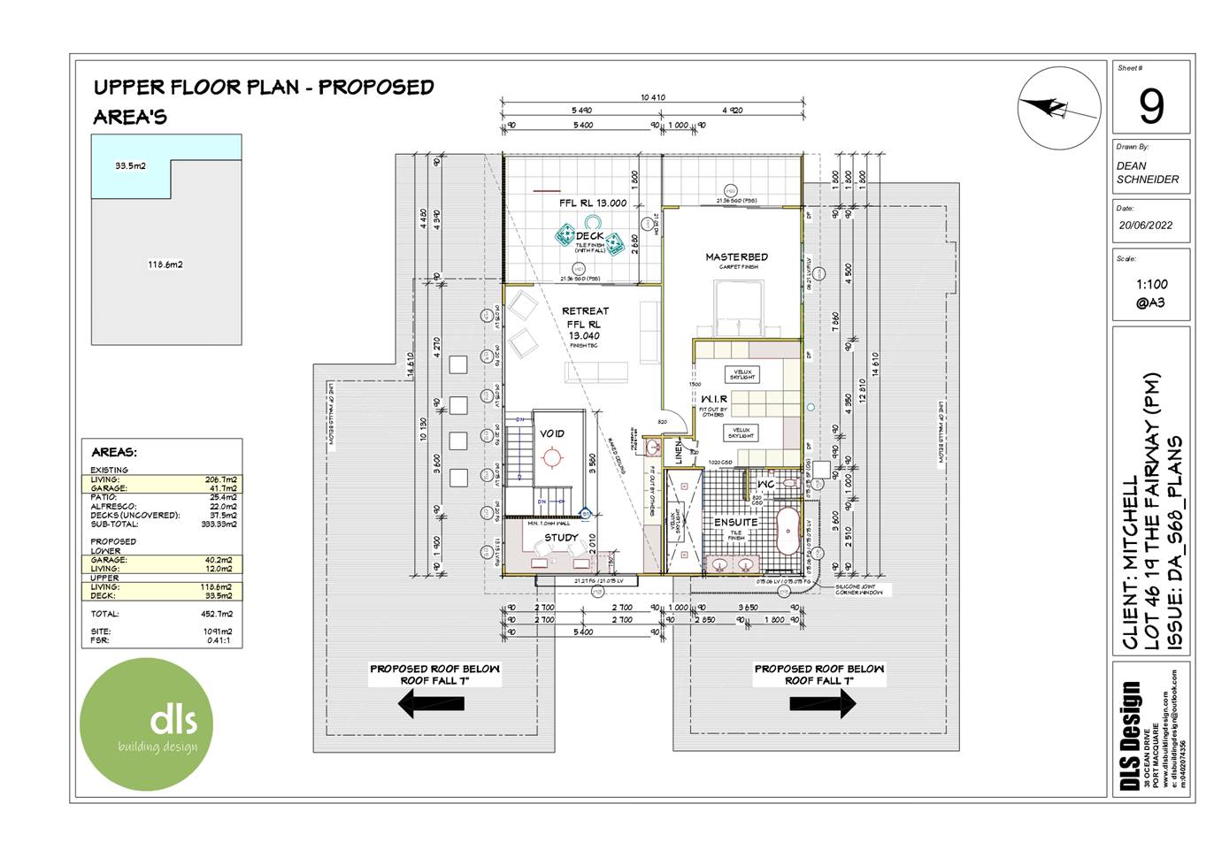
Subject: DA2022 - 304.1 Alterations and Additions to Dwelling at Lot 46 DP 807508, No 19 The Fairway, Port Macquarie
Report Author: Development Assessment Officer (Planner), Benjamin Roberts
|
Applicant: DLS Building Design Owner: P J & K J Mitchell Estimated Cost: $500,000 Parcel no: 23511 Alignment with Delivery Program 4.3.1 Undertake transparent and efficient development assessment in accordance with relevant legislation. |
That DA2022 - 304.1 for alterations and additions to dwelling at Lot 46, DP 807508, No. 19 The Fairway, Port Macquarie, be determined by granting consent subject to the recommended conditions.
Executive Summary
This report considers a development application for alterations and additions to dwelling at the subject site and provides an assessment of the application in accordance with the Environmental Planning and Assessment Act 1979.
Following exhibition of the application, four (4) submissions were received.
The site is considered suitable for the proposed development and the proposal adequately addresses relevant planning controls. The development is not considered to be contrary to the public's interest and will not result a significant adverse social, environmental or economic impact.
This report recommends that the development application be granted consent subject to the conditions attached as Attachment 1.
The reason for the application being referred to Council’s Development Assessment Panel (DAP) is because three (3) or more objections to the proposal have been received A copy of the DAP Charter outlining the delegations and functions of the DAP is available on Council’s website.
1. BACKGROUND
Existing Sites Features and Surrounding Development
The site has an area of 1090.88m2 and contains an existing single storey dwelling with ancillary shed and swimming pool in the rear yard.
The site is zoned R1 General Residential in accordance with the Port Macquarie-Hastings Local Environmental Plan 2011, as shown in the following zoning plan:
The existing subdivision pattern and location of existing
development within the locality is shown in the following aerial photograph:

2. DESCRIPTION OF DEVELOPMENT
Key aspects of the proposal include the following:
· Alterations and additions to the dwelling in the form of a second storey addition and ground floor alterations and additions.
Refer to Attachment 2 at the end of this report for plans of the proposed development.
Application Chronology
· 11 April 2022 - Application lodged.
· 14 April 2022 - Referral to Essential Energy.
· 21 April to 5 May 2022 - Public exhibition via neighbour notification.
· 6 May 2022 - Essential Energy comments received.
· 11 May 2022 - Applicant response to issues raised within submissions.
· 10 June 2022 - Site inspection and additional information request to applicant.
· 21 June 2022 - Revised plans lodged.
3. STATUTORY ASSESSMENT
Section 4.15(1) Matters for Consideration
In determining the application, Council is required to take into consideration the following matters as are relevant to the development that apply to the land to which the development application relates:
(a) The provisions (where applicable) of:
(i) Any Environmental Planning Instrument
State Environmental Planning Policy (Biodiversity and Conservation) 2021
Chapter 4 Koala Habitat Protection 2021
Clause 4.4 - This SEPP applies to all non-rural zoned land within the Port Macquarie-Hastings Local Government Area.
Clause 4.10 - Having considered the SEPP, the application and on completion of a site inspection, Council is not prevented from granting consent in this case for the following reasons:
1. The property is not subject to a KPOM;
2. No vegetation removal is proposed; and
3. The site not considered to be core koala habitat.
Chapter 4 Remediation of Land
Clause 4.6 - Following an inspection of the site and a search of Council records, the subject land is not identified as being potentially contaminated and is suitable for the intended use.
State Environmental Planning Policy (Building Sustainability Index: BASIX) 2004
A BASIX certificate has been submitted demonstrating that the proposal will comply with the requirements of the SEPP. It is recommended that a condition be imposed to ensure that the commitments are incorporated into the development and certified at Occupation Certificate stage.
State Environmental Planning Policy (Transport and Infrastructure) 2021
Clause 2.48 - Development in proximity to electricity infrastructure - referral to Essential Energy has been undertaken. The following comments were received for consideration:
“Strictly based on the documents submitted, Essential Energy has no comments to make as to potential safety risks arising from the proposed development.
Essential Energy makes the following general comments:
· If the proposed development changes, there may be potential safety risks and it is recommended that Essential Energy is consulted for further comment;
· Any existing encumbrances in favour of Essential Energy (or its predecessors) noted on the title of the above property should be complied with; and
· In addition, Essential Energy’s records indicate there is electricity infrastructure located within the property. Any activities within this location must be undertaken in accordance with the latest industry guideline currently known as ISSC 20 Guideline for the Management of Activities within Electricity Easements and Close to Infrastructure.
· Prior to carrying out any works, a “Dial Before You Dig” enquiry should be undertaken in accordance with the requirements of Part 5E (Protection of Underground Electricity Power Lines) of the Electricity Supply Act 1995 (NSW).
· Given there is electricity infrastructure in the area, it is the responsibility of the person/s completing any works around powerlines to understand their safety responsibilities. SafeWork NSW (www.safework.nsw.gov.au) has publications that provide guidance when working close to electricity infrastructure. These include the Code of Practice – Work near Overhead Power Lines and Code of Practice – Work near Underground Assets.”
Essential Energy have no specific safety concerns regarding the development, but have provided some general advice. The general advice has been forwarded the applicant for consideration.
State Environmental Planning Policy (Primary Production) 2021
Part 2.5 Division 4 - The proposed development will create no adverse impact on any oyster aquaculture development
Port Macquarie-Hastings Local Environmental Plan 2011
The proposal is consistent with the LEP having regard to the following:
· Clause 2.2 - The subject site is zoned R1 General Residential.
· Clause 2.3(1) and the R1 zone landuse table - The alterations and additions are to an existing dwelling house. Dwelling houses are a permissible landuse with consent.
The objectives of the R1 zone are as follows:
o To provide for the housing needs of the community.
o To provide for a variety of housing types and densities.
o To enable other land uses that provide facilities or services to meet the day to day needs of residents.
· Clause 2.3(2) - The proposal is consistent with the zone objectives as it contributes to the range of housing options in the locality.
· Clause 2.7 - The part demolition requires consent as it does not fit within the provisions of SEPP (Exempt and Complying Development Codes) 2008.
· Clause 4.3 - The maximum overall height of the building above ground level (existing) is 7.14m which complies with the height limit of 11.5m applying to the site.
· Clause 4.4 - The floor space ratio of the proposal is 0.41:1, which complies with the maximum 1:1 floor space ratio applying to the site.
· Clause 5.10 - Heritage. The site does not contain or adjoin any known heritage items or sites of significance.
· Clause 7.13 - Satisfactory arrangements are in place for provision of essential services including water supply, electricity supply, sewer infrastructure, stormwater drainage and suitable road access to service the development.
(ii) Any draft instruments that apply to the site or are on exhibition
No draft instruments apply to the site.
(iii) Any Development Control Plan in force
Port Macquarie-Hastings Development Control Plan 2013
|
DCP 2013: Part B - General Provisions - B2: Environmental Management |
|||
|
DCP Objective |
Development Provisions |
Proposed |
Complies |
|
3 |
a) Development must comply with Council’s Developments, Public Place & Events - Waste Minimisation and Management Policy. |
Satisfactory arrangements can be put in place for storage and collection of waste. Standard condition recommended for construction waste management. |
Yes |
|
Cut and Fill Regrading
|
|||
|
4 |
a) Development shall not exceed a maximum cut of 1.0m and fill of 1.0m measured vertically above the ground level (existing) at a distance of 1.0m outside the perimeter of the external walls of the building (This does not apply to buildings where such cut and fill is fully retained within or by the external walls of the building). |
No cut or fill proposed. |
N/A |
|
5 |
a) A certified practicing structural engineer must certify any retaining wall greater than 1.0m. |
Extension of rock retaining wall at front proposed in north-western portion of the site. Suitable conditions applied. |
Yes |
|
b) Where a combination of a fence and a wall is proposed to be greater than 1.2m high: - be a maximum combined height of 1.8m above existing property boundary level; - be constructed up to the front boundary for a maximum length of 6.0m or 30% of the street frontage, whichever is less; − the fence component has openings which make it not less than 25% transparent; and − provide a 3m x 3m splay for corner sites, and - provide a 900mm x 900mm splay for vehicle driveway entrances. |
No fence and retaining wall combination proposed. |
N/A |
|
|
DCP 2013: Part B- General Provisions- B4: Transport, Traffic Management, Access and Car Parking |
|||
|
DCP Objective |
Development Provisions |
Proposed |
Complies |
|
Parking Provision
|
|||
|
24 |
a) Off-street Parking is provided in accordance with Table 3: - 1 parking space per each dwelling for dwelling-house. |
Double garage proposed. |
Yes |
|
Parking Layout
|
|||
|
28 |
c) Parking spaces shall generally be behind the building line but may be located between the building line and the street when: − it is stacked parking in the driveway; or − it can be demonstrated that improvements to the open space provided will result; and − the spaces are screened (densely landscaped or similar) from the street by a landscaping with a minimum width of 3.0m for the entire length of the parking area. |
The plans have been amended to provide for the garage to be located behind the building line. |
Yes |
|
d) Parking design and layout is provided in accordance with AS/NZS 2890.1 - Parking facilities - Off-street car parking. |
Garage design consistent with standard. |
Yes |
|
|
34 |
a) All parking and manoeuvring spaces must be designed to avoid concentrations of water runoff on the surface. |
Stormwater capable of being managed onsite. |
Yes |
|
b) Council will not permit the discharge of stormwater directly into kerbing and guttering or table drains for any development other than that of a minor nature. |
Stormwater to be connected to existing. |
Yes |
|
|
DCP 2013: Part B - General Provisions - B5: Social Impact Assessment and Crime Prevention |
|||
|
DCP Objective |
Development Provisions |
Proposed |
Complies |
|
Crime Prevention
|
|||
|
43 |
a) The development addresses the generic principles of crime prevention: − Casual surveillance and sightlines; − Land use mix and activity generators; − Definition of use and ownership; − Basic exterior building design; − Lighting; − Way-finding; and − Predictable routes and entrapment locations; − as described in the Crime Prevention Through Environmental Design (CPTED) principles. |
No concealment or entrapment areas proposed. Adequate casual surveillance available. |
Yes |
|
DCP 2013: Part C - Development Specific Provisions - C1: Low Density Residential Development |
|||
|
DCP Objective |
Development Provisions |
Proposed |
Complies |
|
Front Setbacks
|
|||
|
a) Dwellings may incorporate an articulation zone to a street frontage at no less than 3m from property boundary. The following building elements are permitted within the articulation zone: − an entry feature or portico; − a balcony, deck, patio, pergola, terrace or verandah; − a window box treatment; − a bay window or similar feature; − an awning or other feature over a window; − a sun shading feature.
b) These building elements should not extend above the eave gutter line, other than a pitched roof to an entry feature or portico that has the same pitch as the roof on the dwelling house. |
A curved slatted style pergola entry structure is proposed within the articulation zone setback 5.34m from the front boundary. The structure does not extend above the eave gutter line. |
Yes |
|
|
c) The primary road front setback shall be: Classified road = any frontage 6.0m Primary frontage = 4.5m Secondary frontage = 3.0m Ancillary Lane = 2.0m Large lot residential and rural zones = 10.0m |
5.5m main front setback. |
Yes |
|
|
45 |
a) A garage, carport or car parking space should: − be at least 1m behind the building line, where the dwelling(s) has a setback from a front boundary of 4.5m or more, or
|
The plans were amended to incorporate the curved slatted style pergola entry structure so that the garage is now located 1m behind the building line. The garage is 5.5m from the front boundary. |
Yes |
|
b) The total width of the garage/carport openings should not be more than 6m and not more than 50 per cent of the width of the building. |
5.4m wide garage door which equates to 25% of building width. |
Yes |
|
|
c) Driveway crossovers are no greater than 5.0m in width. |
No change proposed or required to the existing driveway crossover. |
N/A |
|
|
d) Where a dual occupancy or attached dwelling is proposed on a corner lot a garage and driveway is provided on each road frontage. |
No dual occupancy proposed. Not a corner lot. |
N/A |
|
|
Side and Rear Setbacks
|
|||
|
46 |
a) A minimum rear boundary setback of 4m is to be provided to dwellings (including verandahs, patios and decks). |
14m rear setback to first floor upper deck. |
Yes |
|
b) A minimum rear boundary setback of 900mm applies to sheds and swimming pools subject to achieving minimum required private open space area. |
No shed or swimming pools proposed. |
N/A |
|
|
c) Council may consider varying rear setback requirements where it is demonstrated that the private open space could achieve better solar access between the building and the side setback. In that instance, one side setback should be a minimum 4m in width (for an equivalent length of rear boundary, behind building line) and the rear setback may be reduced to 900mm. |
N/A |
N/A |
|
|
47 |
a) Ground floors (being <1m above existing ground level) should be setback a minimum of 900mm from side boundaries. |
North side setback = 1.5m South side setback = No change to existing. |
Yes |
|
b) First floors and above (including single storey with floor level >1m) should be setback a minimum of 3m from the side boundary, or reduced down to 900mm where it can be demonstrated that the adjoining property’s primary living rooms and principal private open space areas are not adversely overshadowed for more than 3hrs between 9am - 3pm on 21 June. |
North side setback = 7.54m. South side setback = 7.48m. |
Yes
Yes |
|
|
c) First floors and above should have building walls that step in and out at least every 12m by a minimum of 500mm articulation. Where first floors and above are setback >3m, wall articulation is not required. |
>3m side setbacks proposed. |
N/A |
|
|
Private Open Space
|
|||
|
48. |
a) All dwellings should have a minimum area of private open space of 35m2, which includes a principal private open space area with: − a minimum dimension of 4m x 4m, and − a maximum grade of 5% for minimum 4m x 4m of the total open space requirement, and − direct accessibility from a ground floor living area and orientated to maximise use. |
Flat open space area >35m2 with directly accessible 4m x 4m area from living room. |
Yes |
|
|
b) Private open space may include clothes drying areas and garbage storage. |
Noted. |
Yes |
|
Public Domain and Fencing
|
|||
|
49 |
a) Front fences built forward of the building line for the primary road frontage should be detailed on the development application plans. |
No front fencing proposed. |
N/A |
|
b) Solid Front fences up to 1.2m high should be: − Setback 1.0m from the front boundary, and − Suitably landscaped to reduce visual impact, and − Provide a 3m x 3m splay for corner sites. |
No front fencing proposed. |
N/A |
|
|
b) Front fences proposed to be more than 1.2m high should be a maximum of 1.8m in height, above existing front property boundary level, and either: − Include landscaped recesses having minimum dimensions of 1.8m long x 900mm deep which occupy no less than 50% of the total length of the fence, or − be erected up to the front boundary for a maximum length of 6.0m or 50% of the street frontage, |
No front fencing proposed. |
N/A |
|
|
c) have openings which make it not less than 25% transparent (no individual opening more than 30mm wide); |
No front fencing proposed. |
N/A |
|
|
d) provide a 3m x 3m splay for corner sites, and |
No front fencing proposed. |
N/A |
|
|
e) provide a 900mm x 900mm splay for vehicle driveway entrances. |
No front fencing proposed. |
N/A |
|
|
Bulk and Scale
|
|||
|
51 |
a) Direct views between indoor living rooms and principal private open space of adjacent dwellings, including proposed dwellings approved on adjoining lots, including possible dwellings on future lots, should be obscured or screened where: − Ground and first floor (and above) indoor living room windows are within a 9m radius. − Direct views between principal private open space areas where within a 12m radius. − Direct views between indoor living rooms of dwellings into the principal area of private open space of other dwellings within a 12m radius. |
The main indoor living rooms and principle open space areas are located on the ground floor. Existing 1.8m high boundary fencing provides for adequate privacy protection to adjacent dwellings. |
Yes |
|
b) A balcony, deck, patio, pergola, terrace or verandah should have a privacy screen where there are direct views of: − Indoor living room windows of adjacent dwellings, including proposed dwellings approved on adjoining lots within 9m radius; or − Principal areas of private open space of adjacent dwellings, including proposed dwellings approved on adjoining lots within a 12m radius. |
The first floor rear deck contains privacy screening to both ends as to maintain privacy to adjacent dwellings living rooms and principle open space areas. It should be noted that the plans were amended during assessment to provide for privacy screening to the southern end of the rear deck in response to the adjacent owner’s privacy concerns. The southern side of first floor rear deck is setback 7.48m from the side boundary. The primary open space area at the rear of this dwelling is setback approximately 6m from the side boundary. Which equates to 13.48m separation distance which is beyond the 12m radius requiring privacy screening. |
Yes |
|
|
c) Privacy protection is not required for: − Any Indoor living room windows with a sill height of greater than 1.5m above the finished floor level of that room or where fixed non-openable translucent glass is installed to the same height. |
North facing highlight windows (2.1m sill height) to the retreat room on the first floor. |
Yes |
|
|
d) Direct views described above may be reduced or obscured by one of the following measures (details to be submitted with the development application): − 1.8m high fence or wall between ground-floor level windows or between a dwelling and principal private open space − Screening of minimum 1.7m height, that has 25% openings (max), with no individual opening more than 30mm wide, is permanently fixed and is made of durable materials. − A window, the whole of which has translucent glass and is not able to be opened. |
The first floor rear deck contains privacy screening to both ends. A consent condition is recommended requiring specific details to be illustrated on the Construction Certificate plan satisfying the screening requirements. |
Yes |
|
|
Ancillary Development
|
|||
|
56 |
a) For ancillary development in R1 General Residential, R2 Low Density Residential, R3 Medium Density Residential, R4 High Density Residential, R5 Large Lot Residential and RU5 Village zones: − The height of an outbuilding or the alterations and additions to an existing outbuilding on a lot should not be more than 4.8m above ground level (existing). − The building should be single storey construction with a maximum roof pitch of 24 degrees. − The maximum area of the building should be 60m2 for lots less than 900m² and maximum of 100m² for larger lots. − Ancillary development that is a garage, or an outbuilding, or a rainwater tank should not be located in front of the main building line with the exception of swimming pools. |
No ancillary development proposed. |
N/A |
(iiia) Any planning agreement that has been entered into under section 7.4, or any draft planning agreement that a developer has offered to enter into under section 7.4
No planning agreement has been offered or entered into relating to the site.
(iv) Any matters prescribed by the Regulations
Demolition of buildings AS 2601
Part demolition work on the existing dwelling is capable of compliance with this Australian Standard and is recommended to be conditioned.
(b) The likely impacts of that development, including environmental impacts on both the natural and built environments, social and economic impacts in the locality
Context and Setting
The proposal will not have any significant adverse impacts on existing adjoining properties and satisfactorily addresses the public domain.
The proposal is considered to be compatible with other residential development in the locality and adequately addresses planning controls for the area.
The proposal does not have a significant adverse impact on existing view sharing.
The proposal does not have significant adverse lighting impacts.
There are no significant adverse privacy impacts. Privacy screening provided to both ends of the first floor decks.
There are no significant adverse overshadowing impacts. The proposal does not prevent adjoining properties from receiving 3 hours of sunlight to private open space and primary living areas on 21 June.
Access, Traffic and Transport
No changes proposed or required to the existing driveway crossover. The development remains a single dwelling and will not result in any increase in traffic generation.
Water Supply Connection
Service available – details required with Section 68 application.
An appropriate standard condition is recommended in this regard.
Sewer Connection
Service available - details required with Section 68 application.
An appropriate standard condition is recommended in this regard.
Stormwater
It is proposed to connect stormwater to the existing stormwater arrangement via disposal to the street. Details required with Section 68 application.
An appropriate standard condition is recommended in this regard.
Other Utilities
Telecommunication and electricity services are existing and will remain unchanged.
Heritage
This site does not contain or adjoin any known heritage item or site of significance. The site is considered to be disturbed land.
Other land resources
The site is within an established urban context and will not sterilise any significant mineral or agricultural resource.
Water cycle
The proposed development will not have any significant adverse impacts on water resources and the water cycle.
Soils
The proposed development will not have any adverse impacts on soils in terms of quality, erosion, stability and/or productivity subject to a standard condition requiring erosion and sediment controls to be in place prior to and during construction.
Air and microclimate
The construction and/or operations of the proposed development will not result in any significant adverse impacts on the existing air quality or result in any pollution. Standard precautionary site management condition recommended.
Flora and fauna
Construction of the proposed development will not require any removal/clearing of any native vegetation and therefore does not trigger the biodiversity offsets scheme. Part 7 of the Biodiversity Conservation Act 2016 is considered to be satisfied.
Waste
Satisfactory arrangements are in place for proposed storage and collection of waste and recyclables. No adverse impacts anticipated. Standard precautionary site management condition recommended.
Energy
The proposal includes measures to address energy efficiency and will be required to comply with the requirements of BASIX.
Noise and vibration
The construction of the proposed development will not result in any significant adverse impacts on the existing air quality or result in any pollution. Standard precautionary site management condition recommended.
Bushfire
The site is not identified as being bushfire prone.
Safety, security and crime prevention
The proposed development will be unlikely to create any concealment/entrapment areas or crime spots that would result in any identifiable loss of safety or reduction of security in the immediate area. Adequate casual surveillance is available.
Social impacts in the locality
Given the nature of the proposed development and its location the proposal is not considered to have any significant adverse social impacts.
Economic impact in the locality
The proposal is not considered to have any significant adverse economic impacts on the locality. A likely positive impact is that the development will maintain employment in the construction industry, which will lead to flow impacts such as expenditure in the area.
Site design and internal design
The proposed development design satisfactorily responds to the site attributes and will fit into the locality.
Construction
Construction impacts are considered capable of being managed, standard construction and site management conditions have been recommended.
Cumulative impacts
The proposed development is not considered to have any significant adverse cumulative impacts on the natural or built environment or the social and economic attributes of the locality.
(c) The suitability of the site for the development
The proposal will fit into the locality and the site attributes are conducive to the proposed development.
(d) Any submissions made in accordance with this Act or the Regulations
Four (4) written submissions were received following public exhibition of the application. Copies of the written submissions have been provided separately to members of the DAP.
Key issues raised in the submissions received and comments are provided as follows:
|
Submission Issue/Summary |
Planning Comment/Response |
|
Privacy impacts upon dwelling at rear (24 Hart Street) from first floor rear deck. |
Refer to comments within DCP assessment table. The first floor rear deck is setback approximately 13.8m from the rear boundary. |
|
The plans show a salon for hairdressing and the application makes no mention of any home business. If a home business is proposed then further details should be provided. |
The applicant has confirmed that a home business is not proposed under this application and the plans have been amended to remove any reference to a home business. The applicant did clarify that an exempt home business has been operating from the dwelling for over 2 years and the intent is to continue its operation in the form of exempt development. |
|
Limited survey and site levels have been provided. The accuracy of the site plan and setbacks is questionable. |
Sufficient details have been provided to inform the assessment. |
|
Privacy impacts upon adjacent dwelling at 17B The Fairway from first floor rear deck. |
Refer to comments within DCP assessment table. While not required under the planning controls, the plans were amended to provide privacy screening to the southern end of the deck in response to these privacy concerns. |
|
Potential for further stormwater impacts upon 17B The Fairway primarily attributed to prior installation of swimming pool. |
Stormwater is capable of being managed onsite for the additions to the dwelling proposed under this application. Details of connection to the existing system will be provided as part of the section 68 application. |
|
Concerns over safety and security of the construction site. Request to erect security fencing. |
Standard site management condition recommended, which includes site fencing requirement. |
|
Impacts upon road and nature strip based on previous construction works. Request cleaning and restoration. |
There is no work proposed or required in the road reservation under this application. |
|
Traffic and parking impacts in the street from construction vehicles. Previously occurred with prior works on this site. |
Standard site management condition recommended. The temporary inconvenience of additional construction traffic/parking in the street during construction is unavoidable. Standard traffic and parking rules equally apply to all vehicles. |
|
Parking impacts in street from clients and deliveries associated with proposed hair salon. |
The applicant has confirmed that a home business is not proposed under this application and the plans have been amended to remove any reference to a home business. The applicant did clarify that an exempt home business has been operating from the dwelling for over 2 years and the intent is to continue its operation in the form of exempt development. |
|
Unaware of the proposal, no notification to the owner of 16 The Fairway. |
Council records indicate a development proposal notification letter was sent to the land owner of 16 The Fairway on 14 April 2022. |
(e) The Public Interest
The proposed development satisfies relevant planning controls and will not adversely impact on the wider public interest.
Ecologically Sustainable Development and Precautionary Principle
Ecologically sustainable development requires the effective integration of economic and environmental considerations in decision-making processes.
The four principles of ecologically sustainable development are:
· the precautionary principle,
· intergenerational equity,
· conservation of biological diversity and ecological integrity,
· improved valuation, pricing and incentive mechanisms.
The principles of ESD require that a balance needs to be struck between the man-made development and the need to retain the natural vegetation. Based on the assessment provided in the report and with recommended conditions of consent, it is considered an appropriate balance has been struck.
Climate change
The proposal is not considered to be vulnerable to any risks associated with climate change.
4. DEVELOPMENT CONTRIBUTIONS
· The proposed development will comprise a single dwelling and does not involve the creation of any additional residential component. As a result, s7.11 contributions do not apply.
· The proposed development will comprise a single dwelling and does not contain any commercial/industrial component. As a result, s7.12 contributions do not apply.
· The proposed development will comprise a single dwelling and does not propose any additional residential component. As a result, s64 water supply and sewerage developer charges do not apply.
5. CONCLUSION AND STATEMENT OF REASON
The application has been assessed in accordance with Section 4.15 of the Environmental Planning and Assessment Act 1979.
Issues raised during assessment and public exhibition of the application have been considered in the assessment of the application. Where relevant, conditions have been recommended to manage the impacts attributed to these issues.
The site is considered suitable for the proposed development and the proposal adequately addresses relevant planning controls. The development is not considered to be contrary to the public's interest and will not result a significant adverse social, environmental or economic impact. It is recommended that the application be approved, subject to the recommended conditions of consent provided in the attachment section of this report.
|
Attachments
1⇩. 2⇩. |
Item: 06
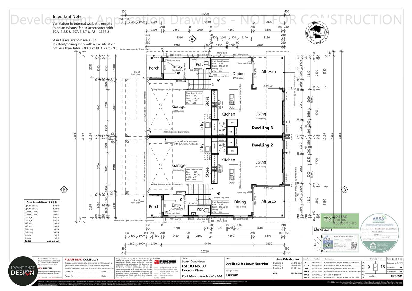
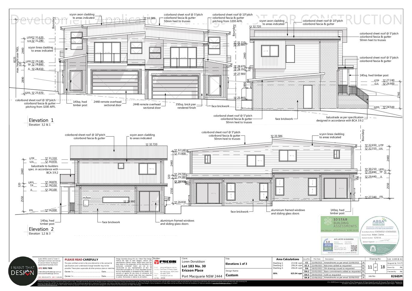
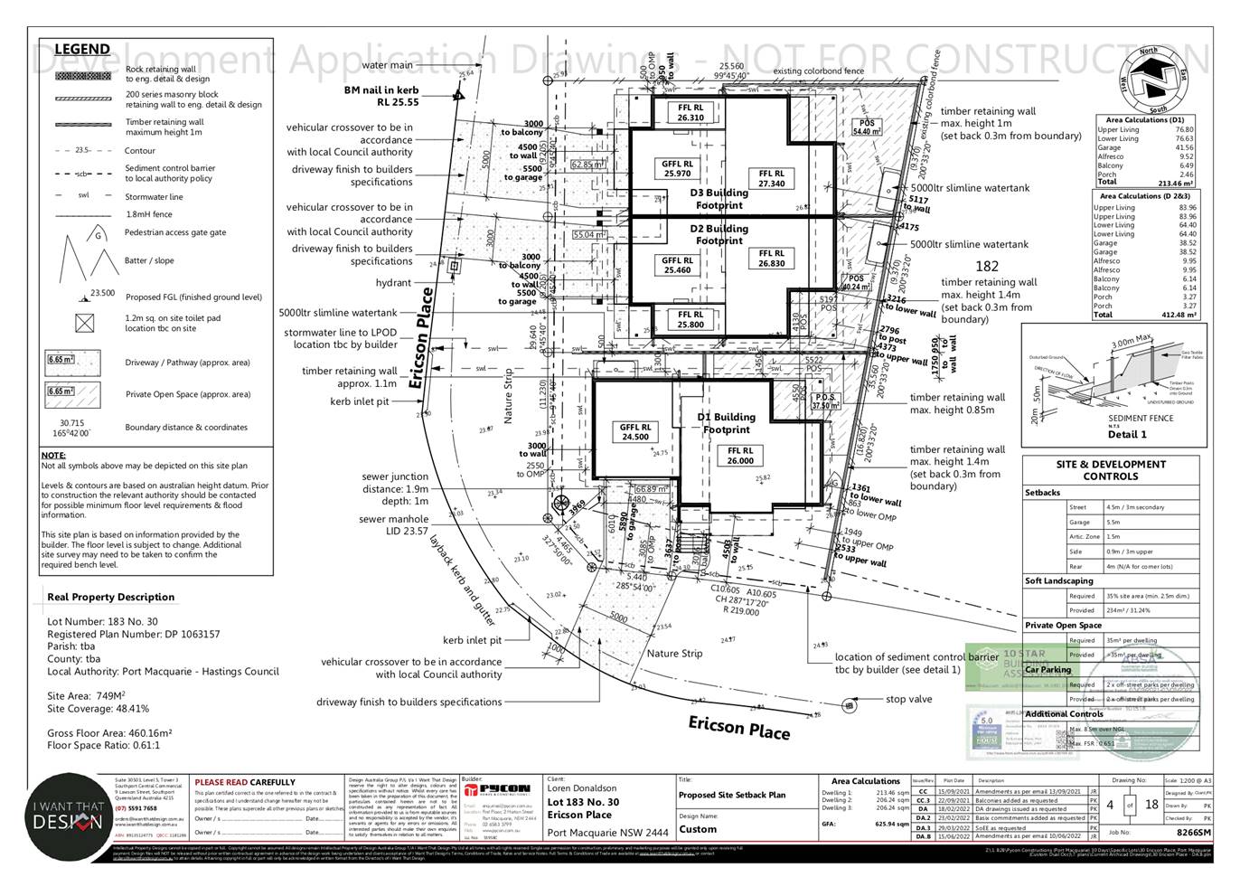
Subject: DA2022 - 294.1 Multi Dwelling Housing and Strata Subdivision Resulting in 2 Semi-detached Dwellings and a Dwelling House at Lot 183 DP 1063157, No 30 Ericson Place, Port Macquarie
Report Author: Development Assessment Planner, Chris Gardiner
|
Applicant: Pycon Homes and Constructions Pty Ltd Owner: L S Donaldson Estimated Cost: $1,295,191 Parcel no: 43247 Alignment with Delivery Program 4.3.1 Undertake transparent and efficient development assessment in accordance with relevant legislation. |
That DA2022 - 294.1 for Multi Dwelling Housing and Strata Subdivision resulting in 2 Semi-detached dwellings and a dwelling house at Lot 183, DP 1063157, No. 30 Ericson Place, Port Macquarie, be determined by granting consent subject to the recommended conditions.
Executive Summary
This report considers a development application for multi dwelling housing and strata subdivision resulting in 2 semi-detached dwellings and a dwelling house at the subject site and provides an assessment of the application in accordance with the Environmental Planning and Assessment Act 1979.
Following exhibition of the application, eight (8) submissions were received.
The proposal has been amended through the assessment process including additional privacy screening, improvements to landscaping and the architectural treatment of the western elevation of Dwelling 1, and improvements to driveway access and stacked parking.
The site is considered suitable for the proposed development and the proposal adequately addresses relevant planning controls. The development is not considered to be contrary to the public's interest and will not result a significant adverse social, environmental or economic impact.
This report recommends that the development application be approved subject to the conditions in Attachment 1.
The reason for the application being referred to Council’s Development Assessment Panel (DAP) is because three (3) or more objections to the proposal have been received. A copy of the DAP Charter outlining the delegations and functions of the DAP is available on Council’s website.
1. BACKGROUND
Existing Sites Features and Surrounding Development
The site has an area of 749m2 and is the last remaining vacant block in the estate. Existing development in the locality is dwelling houses, with a mix of single and two storey dwellings. The immediately adjoining lots to the north and east contain two storey dwelling houses.
The site is zoned R1 General Residential in accordance with the Port Macquarie-Hastings Local Environmental Plan 2011, as shown in the following zoning plan:

The existing subdivision pattern and location of existing development within the locality is shown in the following aerial photograph:

2. DESCRIPTION OF DEVELOPMENT
Key aspects of the proposal include the following:
· Construction of three (3) dwellings;
· Three (3) lot strata subdivision to create 2 x semi-detached dwellings and 1 x dwelling house.
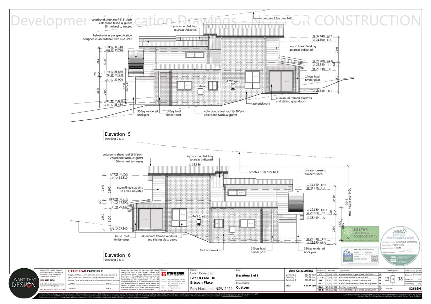
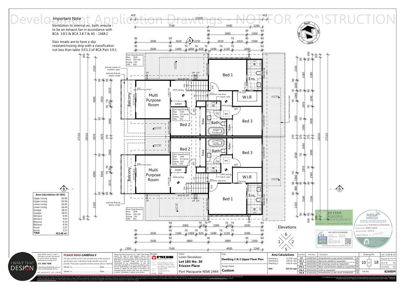
Refer to Attachment 2 at the end of this report for plans of the proposed development.
Application Chronology
· 13 April 2022 - Application accepted for lodgement.
· 19 April 2022 to 3 May 2022 - Neighbour notification.
· 4 May 2022 - Essential Energy comments received.
· 2 June 2022 - Additional information requested from Applicant.
· 21 June 2022 - Additional information and amended plans submitted by Applicant.
3. STATUTORY ASSESSMENT
Section 4.15(1) Matters for Consideration
In determining the application, Council is required to take into consideration the following matters as are relevant to the development that apply to the land to which the development application relates:
(a) The provisions (where applicable) of:
(i) Any Environmental Planning Instrument
State Environmental Planning Policy (Biodiversity and Conservation) 2021
Chapter 4 Koala Habitat Protection 2021
Clause 4.4 - This SEPP applies to all non-rural zoned land within the Port Macquarie-Hastings Local Government Area.
Clause 4.10 - Council is not prevented from granting consent in this case for the following reasons:
1. The property is not subject to a KPOM, and
2. The site not considered to be core koala habitat.
State Environmental Planning Policy (Resilience and Hazards) 2021
Chapter 4 Remediation of Land
Clause 4.6 - Following an inspection of the site and a search of Council records, the subject land is not identified as being potentially contaminated and is suitable for the intended use.
State Environmental Planning Policy (Building Sustainability Index: BASIX) 2004
A BASIX certificate has been submitted demonstrating that the proposal will comply with the requirements of the SEPP. It is recommended that a condition be imposed to ensure that the commitments are incorporated into the development and certified at Occupation Certificate stage.
State Environmental Planning Policy (Transport and Infrastructure) 2021
Clause 2.48 - The application has been referred to Essential Energy in accordance with this clause (CNR-38237). Essential Energy have no specific concerns regarding the development, but have provided some general advice. The advice received from Essential Energy has been forwarded the Applicant for consideration.
State Environmental Planning Policy (Primary Production) 2021
Part 2.5 Division 4 - The proposed development will create no adverse impact on any oyster aquaculture development or priority oyster aquaculture area.
Port Macquarie-Hastings Local Environmental Plan 2011
The proposal is consistent with the LEP having regard to the following:
· Clause 1.9A - For the purpose of enabling development on land in any zone to be carried out in accordance with this Plan, any agreement, covenant or other similar instrument that restricts the carrying out of that development does not apply to the extent necessary to serve that purpose. In this case the site is subject to a restriction on the use of land, which restricts development to a single private dwelling on each lot. This restriction is inconsistent with the LEP noting that the R1 zone objectives seek to provide a variety of housing types and densities, and multi dwelling housing is a permissible land use in the zone. Accordingly, the restriction does not apply.
· Clause 2.2 - The subject site is zoned R1 General Residential.
· Clause 2.3(1) and the R1 zone landuse table - The multi dwelling housing is a permissible landuse with consent. Following subdivision, two lots will contain semi-detached dwellings and the other lot would contain a dwelling house.
The objectives of the R1 zone are as follows:
o To provide for the housing needs of the community.
o To provide for a variety of housing types and densities.
o To enable other land uses that provide facilities or services to meet the day to day needs of residents.
· Clause 2.3(2) - The proposal is consistent with the zone objectives as the development will contribute to the variety of housing types and densities to meet the housing needs of the community.
· Clause 4.1(4) - The minimum 450m2 lot size does not apply to the development as it proposes a strata subdivision.
· Clause 4.3 - The maximum overall height of the building above ground level (existing) is 8.23m which complies with the standard height limit of 8.5m applying to the site.
· Clause 4.4 - The floor space ratio of the proposal is 0.62:1 which complies with the maximum 0.65:1 floor space ratio applying to the site.
· Clause 5.10 - The site does not contain or adjoin any known heritage items or sites of significance.
· Clause 7.13 - Satisfactory arrangements are in place for provision of essential services including water supply, electricity supply, sewer infrastructure, stormwater drainage and suitable road access to service the development. Provision of electricity will be subject to obtaining satisfactory arrangements certification prior to the issue of a Strata Certificate as recommended by a condition of consent.
(ii) Any draft instruments that apply to the site or are on exhibition
No draft instruments apply to the site.
(iii) Any Development Control Plan in force
Port Macquarie-Hastings Development Control Plan 2013
|
DCP 2013: Part B - General Provisions - B2: Environmental Management |
|||
|
DCP Objective |
Development Provisions |
Proposed |
Complies |
|
3 |
a) Development must comply with Council’s Developments, Public Place & Events - Waste Minimisation and Management Policy. |
Satisfactory arrangements can be put in place for storage and collection of waste. The site would retain adequate street frontage clear of driveways for kerbside waste collection. Standard condition recommended for construction waste management.
|
Yes |
|
Cut and Fill Regrading
|
|||
|
4 |
a) Development shall not exceed a maximum cut of 1.0m and fill of 1.0m measured vertically above the ground level (existing) at a distance of 1.0m outside the perimeter of the external walls of the building (This does not apply to buildings where such cut and fill is fully retained within or by the external walls of the building). |
Proposal includes excavation of up to 1.4m high in some locations along the eastern boundary of the site. |
No* |
|
5 |
a) A certified practicing structural engineer must certify any retaining wall greater than 1.0m. |
Condition recommended requiring certification of retaining walls. |
Yes |
|
b) Where a combination of a fence and a wall is proposed to be greater than 1.2m high: - be a maximum combined height of 1.8m above existing property boundary level; - be constructed up to the front boundary for a maximum length of 6.0m or 30% of the street frontage, whichever is less; − the fence component has openings which make it not less than 25% transparent; and − provide a 3m x 3m splay for corner sites, and - provide a 900mm x 900mm splay for vehicle driveway entrances. |
No front fence and retaining wall combination proposed. |
N/A |
|
|
DCP 2013: Part B - General Provision - B3: Hazards Management |
|||
|
Bushfire Hazard Management
|
|||
|
18 |
a) APZs are to be located outside of environmental protection zones and wholly provided within private land. Note perimeter roads provided as part of a residential subdivision are classified as being part of the subdivision and not a separate permissible land use within environment protection zones. |
No APZ proposed in asset protection zone. |
Yes |
|
DCP 2013: Part B- General Provisions- B4: Transport, Traffic Management, Access and Car Parking |
||||
|
DCP Objective |
Development Provisions |
Proposed |
Complies |
|
|
Parking Provision
|
||||
|
24 |
a) Off-street Parking is provided in accordance with Table 3.
1 parking space per each dwelling for dwelling-houses/dual occupancies/semi-detached dwellings. |
The final development will comprise 2 semi-detached dwellings and a dwelling house. These will require a minimum of 1 parking space each (3 spaces total).
The development will provide a total of 6 parking spaces in garages and exceeds the minimum requirements of this provision.
Visitor parking will also be provided in the driveway forward of the garage of each dwelling. |
Yes |
|
|
DCP 2013: Part B - General Provisions - B5: Social Impact Assessment and Crime Prevention |
|||
|
DCP Objective |
Development Provisions |
Proposed |
Complies |
|
Crime Prevention
|
|||
|
43 |
a) The development addresses the generic principles of crime prevention: − Casual surveillance and sightlines; − Land use mix and activity generators; − Definition of use and ownership; − Basic exterior building design; − Lighting; − Way-finding; and − Predictable routes and entrapment locations; − as described in the Crime Prevention Through Environmental Design (CPTED) principles. |
No concealment or entrapment areas proposed. Adequate casual surveillance available. |
Yes |
|
DCP 2013: Part C - Development Specific Provisions - C1: Low Density Residential Development |
|||
|
DCP Objective |
Development Provisions |
Proposed |
Complies |
|
Front Setbacks
|
|||
|
44 |
a) Dwellings may incorporate an articulation zone to a street frontage at no less than 3m from property boundary. The following building elements are permitted within the articulation zone: − an entry feature or portico; − a balcony, deck, patio, pergola, terrace or verandah; − a window box treatment; − a bay window or similar feature; − an awning or other feature over a window; − a sun shading feature.
b) These building elements should not extend above the eave gutter line, other than a pitched roof to an entry feature or portico that has the same pitch as the roof on the dwelling house. |
Proposal includes balconies and portico in the articulation zone to 3m setback. |
Yes |
|
c) The primary road front setback shall be: Classified road = any frontage 6.0m Primary frontage = 4.5m Secondary frontage = 3.0m Ancillary Lane = 2.0m Large lot residential and rural zones = 10.0m |
Dwelling 1 - 4.5m setback to southern frontage and 3.0m setback to western frontage.
Dwellings 2 & 3 - 4.5m setback to western frontage. |
Yes |
|
|
45 |
a) A garage, carport or car parking space should: − be at least 1m behind the building line, where the dwelling(s) has a setback from a front boundary of 4.5m or more, or
|
Dwelling 1 - 5.89m setback and more than 1m behind front of building when viewed from the south, where the garage opening is oriented. The western wall of the garage is setback 3m from the front boundary and is forward of the building line on the western frontage.
Dwelling 2 - 5.5m setback and more than 1m behind the first floor building and balcony.
Dwelling 3 - 5.5m setback and more than 1m behind the first floor building and balcony. |
No*
Yes
Yes |
|
b) The total width of the garage/carport openings should not be more than 6m and not more than 50 per cent of the width of the building. |
Dwelling 1 - 4.8m wide and 29% of building width.
Dwelling 2 - 4.8m wide and 58% of building width.
Dwelling 3 - 4.8m wide and 58% of building width. |
Yes
No*
No* |
|
|
c) Driveway crossovers are no greater than 5.0m in width. |
Dwelling 1 & 3 driveways 5m wide and Dwelling 2 driveway 3m wide. |
Yes |
|
|
d) Where a dual occupancy or attached dwelling is proposed on a corner lot a garage and driveway is provided on each road frontage. |
Development includes driveways to both the southern and western frontage. |
Yes |
|
|
Side and Rear Setbacks
|
|||
|
46 |
a) A minimum rear boundary setback of 4m is to be provided to dwellings (including verandahs, patios and decks). |
Site is a corner lot and does not have a rear boundary. |
N/A |
|
b) A minimum rear boundary setback of 900mm applies to sheds and swimming pools subject to achieving minimum required private open space area. |
N/A |
N/A |
|
|
c) Council may consider varying rear setback requirements where it is demonstrated that the private open space could achieve better solar access between the building and the side setback. In that instance, one side setback should be a minimum 4m in width (for an equivalent length of rear boundary, behind building line) and the rear setback may be reduced to 900mm. |
N/A |
N/A |
|
|
47 |
a) Ground floors (being <1m above existing ground level) should be setback a minimum of 900mm from side boundaries. |
Minimum 0.95m side setback to ground floors. |
Yes |
|
b) First floors and above (including single storey with floor level >1m) should be setback a minimum of 3m from the side boundary, or reduced down to 900mm where it can be demonstrated that the adjoining property’s primary living rooms and principal private open space areas are not adversely overshadowed for more than 3hrs between 9am - 3pm on 21 June. |
0.95m first floor setback for Dwelling 3 to northern side boundary.
Dwelling 1 first floor setback to eastern boundary between 1.36m and 2.5m.
The Applicant has submitted satisfactory shadow diagrams demonstrating that the adjoining property’s primary living rooms and principal private open space areas will not be adversely overshadowed for more than 3 hours between 9am - 3pm on 21 June. |
Yes |
|
|
c) First floors and above should have building walls that step in and out at least every 12m by a minimum of 500mm articulation. Where first floors and above are setback >3m, wall articulation is not required. |
No first floor walls proposed exceeding 12m long. |
N/A |
|
|
Private Open Space
|
|||
|
48. |
a) All dwellings should have a minimum area of private open space of 35m2, which includes a principal private open space area with: − a minimum dimension of 4m x 4m, and − a maximum grade of 5% for minimum 4m x 4m of the total open space requirement, and − direct accessibility from a ground floor living area and orientated to maximise use. |
Dwelling 1 - 37.5m2. Dwelling 2 - 40.24m2. Dwelling 3 - 54.4m2.
All private open space areas include a 4m x 4m area at appropriate grade and accessible from a living area. |
Yes |
|
|
b) Private open space may include clothes drying areas and garbage storage. |
Noted. |
|
|
Public Domain and Fencing
|
|||
|
49 |
a) Front fences built forward of the building line for the primary road frontage should be detailed on the development application plans. |
No front fences proposed. |
N/A |
|
b) Solid Front fences up to 1.2m high should be: − Setback 1.0m from the front boundary, and − Suitably landscaped to reduce visual impact, and − Provide a 3m x 3m splay for corner sites. |
N/A |
N/A |
|
|
b) Front fences proposed to be more than 1.2m high should be a maximum of 1.8m in height, above existing front property boundary level, and either: − Include landscaped recesses having minimum dimensions of 1.8m long x 900mm deep which occupy no less than 50% of the total length of the fence, or − be erected up to the front boundary for a maximum length of 6.0m or 50% of the street frontage, |
N/A |
N/A |
|
|
c) have openings which make it not less than 25% transparent (no individual opening more than 30mm wide); |
N/A |
N/A |
|
|
d) provide a 3m x 3m splay for corner sites, and |
N/A |
N/A |
|
|
e) provide a 900mm x 900mm splay for vehicle driveway entrances. |
N/A |
N/A |
|
|
50 |
a) For tennis courts or other similar areas, chain wire fences should be black or dark green plastic coated mesh. |
N/A |
N/A |
|
b) Solid fences enclosing these facilities should not be permitted over 1.8m. |
N/A |
N/A |
|
|
Bulk and Scale
|
|||
|
51 |
a) Direct views between indoor living rooms and principal private open space of adjacent dwellings, including proposed dwellings approved on adjoining lots, including possible dwellings on future lots, should be obscured or screened where: − Ground and first floor (and above) indoor living room windows are within a 9m radius. − Direct views between principal private open space areas where within a 12m radius. − Direct views between indoor living rooms of dwellings into the principal area of private open space of other dwellings within a 12m radius. |
All living rooms are located at ground floor level with the exception of the Dwelling 2 & 3 first floor multi-purpose rooms. The multi-purpose rooms have openings oriented towards the street and would not have any privacy impacts. The principal private open space areas for all dwellings are also located at ground floor level. Boundary fencing to 1.8m high will be sufficient to screen these views. |
Yes |
|
b) A balcony, deck, patio, pergola, terrace or verandah should have a privacy screen where there are direct views of: − Indoor living room windows of adjacent dwellings, including proposed dwellings approved on adjoining lots within 9m radius; or − Principal areas of private open space of adjacent dwellings, including proposed dwellings approved on adjoining lots within a 12m radius. |
The first floor front balcony of Dwelling 3 is located within a 9m radius of a balcony and living room window of the existing dwelling at No. 32 Ericson Place. The plans have been amended to include a privacy screen at the northern end of the balcony. |
Yes |
|
|
c) Privacy protection is not required for: − Any Indoor living room windows with a sill height of greater than 1.5m above the finished floor level of that room or where fixed non-openable translucent glass is installed to the same height. |
None of the living area windows are proposed to be treated in this manner for privacy purposes. |
N/A |
|
|
d) Direct views described above may be reduced or obscured by one of the following measures (details to be submitted with the development application): − 1.8m high fence or wall between ground-floor level windows or between a dwelling and principal private open space − Screening of minimum 1.7m height, that has 25% openings (max), with no individual opening more than 30mm wide, is permanently fixed and is made of durable materials. − A window, the whole of which has translucent glass and is not able to be opened. |
Relevant views at ground floor level obscured by 1.8m high fencing.
A 1.8m high privacy screen with maximum 25% openings is proposed on the northern end of the Dwelling 3 balcony. |
Yes |
|
|
Ancillary Development
|
|||
|
56 |
a) For ancillary development in R1 General Residential, R2 Low Density Residential, R3 Medium Density Residential, R4 High Density Residential, R5 Large Lot Residential and RU5 Village zones: − The height of an outbuilding or the alterations and additions to an existing outbuilding on a lot should not be more than 4.8m above ground level (existing). − The building should be single storey construction with a maximum roof pitch of 24 degrees. − The maximum area of the building should be 60m2 for lots less than 900m² and maximum of 100m² for larger lots. − Ancillary development that is a garage, or an outbuilding, or a rainwater tank should not be located in front of the main building line with the exception of swimming pools. |
Proposed rainwater tanks are located behind the building line. |
Yes |
The proposal seeks to vary Development Provision 4 relating to the maximum extent of cut and fill outside the building footprint. The proposal includes excavation of up to 1.4m adjacent to the eastern boundary.
The relevant objectives are to:
· Minimise the extent of site disturbance caused by excessive cut and fill to the site.
· Ensure there is no damage or instability to adjoining properties caused by excavation or filling.
· Ensure that there is no adverse alteration to the drainage of adjoining properties.
· Ensure the privacy of adjoining dwellings and private open space are protected.
· Ensure that adequate stormwater drainage is provided around the perimeter of buildings and that overflow paths are provided.
Having regard for the development provisions and relevant objectives, the variation is considered acceptable for the following reasons:
· A condition has been recommended requiring engineering certification of the retaining walls to ensure that there is no damage or instability caused to neighbouring properties.
· The variation relates to excavation below the existing surface level and would not alter drainage patterns on adjoining properties.
· The excavation will be below existing ground level on the neighbouring properties and will result in improved privacy.
· Adequate stormwater drainage is still capable of being provided around the perimeter of the buildings.
The proposal also seeks to vary Development Provision 45(a) and (b) relating to the Dwelling 1 garage setback to the western boundary and the width of the Dwelling 2 and 3 garages as a proportion of the building width.
The relevant objectives are:
· To minimise the impact of garages and driveways on the streetscape, on street parking and amenity.
· To minimise the visual dominance of garages in the streetscape.
· To provide safe and functional vehicular access.
Having regard for the development provisions and relevant objectives, the variation is considered acceptable for the following reasons:
· Both dwellings are two storeys and the design includes a significant first floor overhang forward of the garage for a multi-purpose room and a balcony. These elements would ensure that the garages are not dominant in the streetscape.
· The western wall of the Dwelling 1 garage does not contain any driveway or vehicle openings and has been provided with a window and landscaping to ensure a suitable residential presentation to the street.
· The western elevation of Dwelling 1 would increase the proportion of building viewed from the western frontage that does not contain garage openings. The proportion of garage to building to the western frontage would comply if the entire development was included in the calculation.
· The additional garage space for each dwelling would improve off street parking and would reduce the reliance on street parking on a bend in a narrow street.
Based on the above assessment, the variations proposed to the provisions of the DCP are considered acceptable and the relevant objectives have been satisfied. Cumulatively, the variations do not amount to an adverse impact or a significance that would justify refusal of the application.
(iiia) Any planning agreement that has been entered into under section 7.4, or any draft planning agreement that a developer has offered to enter into under section 7.4
No planning agreement has been offered or entered into relating to the site.
(iv) Any matters prescribed by the Regulations
No matters prescribed by the regulations are applicable to the proposal.
(b) The likely impacts of that development, including environmental impacts on both the natural and built environments, social and economic impacts in the locality
Context and Setting
The site is located in an established residential area that is predominantly characterised by single dwellings on larger residential lots.
While the development is for a different type of housing to the current stock in the area, it is still considered to be sufficiently compatible with other residential development in the locality in terms of built form, scale and density having regard to the planning controls for the area. The proposal will not have any significant adverse impacts on existing adjoining properties and satisfactorily addresses the public domain.
The proposal does not have a significant adverse impact on existing view sharing.
The proposal does not have significant adverse lighting impacts.
There are no significant adverse privacy impacts.
There are no significant adverse overshadowing impacts. The proposal does not prevent adjoining properties from receiving 3 hours of sunlight to private open space and primary living areas on 21 June.
Access, Traffic and Transport
In accordance with the traffic generation rates in the Guide to Traffic Generating Developments, the proposal is expected on average to generate between 15 and 20 trips per day, including 2 trips in the weekday peak hour. The existing road network will satisfactorily cater for the increase in traffic generation as a result of the development.
Site Frontage and Access
Vehicle access to the site is proposed though three individual driveways, each with direct frontage to Ericson Place being a Council-owned, public road. Access shall comply with Council’s AUSPEC and Australian Standards, and conditions have been recommended to reflect these requirements.
Parking and Manoeuvring
A total of 6 parking spaces have been provided on-site within garages with additional parking provided available within the driveways. Parking and driveway widths on site can comply with relevant Australian Standards (AS 2890) and conditions have been recommended to reflect these requirements.
Water Supply Connection
Council records indicate that the development site has an existing 20mm sealed water service from the existing 100mm PVC water main on the same side of Ericson Place.
Each unit is to be separately metered for water. Water meters for each unit may either be located at the road frontage or internally with a master meter at the boundary
Where water meters are located within 1.0m of driveways, a bollard or similar will be required to protect the water meters. Any water main fittings (hydrants, stop valves etc.) shall be moved clear of driveways if required at no cost to Council.
Detailed plans will be required to be submitted for assessment with the Section 68 application.
Appropriate conditions are recommended in this regard.
Sewer Connection
Council records indicate that the development site is connected to sewer via a junction to the existing 150mm PVC sewer main, which runs inside the western and southern boundaries of the development site. The proposed development may discharge all sewage to the existing point of connection to Council’s sewer system.
The proposed development works are clear of the existing sewer main, but construction works have the potential to be located within the zone of influence of the main. As such, appropriate protection to the sewer pipe shall be provided during construction and footings are to be designed so that no load is transferred to the sewer main.
Detailed plans will be required to be submitted for assessment with the Section 68 application.
Appropriate conditions are recommended in this regard.
Stormwater
The site naturally grades towards the street frontage, which contains two existing kerb inlet pits. The legal point of discharge for the proposed development is defined as a direct connection to Council’s stormwater pit(s) at the site frontage.
On the basis that the development involves the construction of three dwellings, on-site stormwater detention facilities are required to be incorporated into the design. A detailed site stormwater management plan will be required to be submitted for assessment with the Section 68 application and prior to the issue of a Construction Certificate.
Appropriate conditions are recommended in this regard.
Other Utilities
Telecommunication and electricity services are available to the site. Evidence of satisfactory arrangements with the relevant utility authorities for provision to the development will be required prior to the issue of a Strata Certificate.
Heritage
No known items of Aboriginal or European heritage significance exist on the property. No adverse impacts anticipated. The site is in a residential context and considered to be disturbed land.
Other land resources
The site is within an established urban context and will not sterilise any significant mineral or agricultural resource.
Water cycle
The proposed development will not have any significant adverse impacts on water resources and the water cycle.
Soils
The proposed development will not have any significant adverse impacts on soils in terms of quality, erosion, stability and/or productivity subject to a standard condition requiring erosion and sediment controls to be in place prior to and during construction.
Air and microclimate
The construction and/or operations of the proposed development will not result in any significant adverse impacts on the existing air quality or result in any pollution. Standard precautionary site management condition recommended.
Flora and fauna
Construction of the proposed development will not require any removal/clearing of any native vegetation and therefore does not trigger the biodiversity offsets scheme. Part 7 of the Biodiversity Conservation Act 2016 is considered to be satisfied.
Waste
Satisfactory arrangements are in place for proposed storage and collection of waste and recyclables. The site has adequate street frontage to accommodate a Council kerbside waste collection for the 3 dwellings.
A standard precautionary site management condition is also recommended for construction activities.
Energy
The proposal includes measures to address energy efficiency and will be required to comply with the requirements of BASIX.
Noise and vibration
The construction and/or operations of the proposed development will not result in any significant adverse impacts on the existing air quality or result in any pollution. Standard precautionary site management condition recommended.
Bushfire
The site is not identified as being bushfire prone.
Safety, security and crime prevention
The proposed development will be unlikely to create any concealment/entrapment areas or crime spots that would result in any identifiable loss of safety or reduction of security in the immediate area. Adequate casual surveillance is available.
Social impacts in the locality
Given the nature of the proposed development and its location the proposal is not considered to have any significant adverse social impacts.
Economic impact in the locality
The proposal is not considered to have any significant adverse economic impacts on the locality. A likely positive impact is that the development will maintain employment in the construction industry, which will lead to flow impacts such as expenditure in the area.
Site design and internal design
The proposed development design satisfactorily responds to the site attributes and will fit into the locality. No adverse impacts likely.
Construction
Construction impacts are considered capable of being managed, standard construction and site management conditions have been recommended.
Cumulative impacts
The proposed development is not considered to have any significant adverse cumulative impacts on the natural or built environment or the social and economic attributes of the locality.
(c) The suitability of the site for the development
The site is not subject to any hazards or constraints that would make it unsuitable for the proposed development.
(d) Any submissions made in accordance with this Act or the Regulations
Eight (8) written submissions were received following public exhibition of the application. Copies of the written submissions have been provided separately to members of the DAP.
Key issues raised in the submissions received and comments are provided as follows:
|
Submission Issue/Summary |
Planning Comment/Response |
|
The development is not consistent with the title restrictions imposed by the original developer. · Only one main building permitted per lot; · Asbestos cement cladding must not exceed 30% of the external wall area.
Approval has not been granted by Dahlsford Pty Ltd to release, vary or modify these restrictions.
It is not in the public interest to allow the covenants to be varied when other property owners have bought in good faith with an expectation about the type and quality of development on the lot. |
As discussed earlier in this report, Clause 1.9A of the LEP provides that these restrictions have no effect where they would prevent development being carried out in accordance with the Plan. Particularly, the restrictions are inconsistent with the R1 General Residential zone objectives and land use table. The zone objectives encourage a variety of housing types and densities, and multi dwelling housing is a permissible land use in the zone.
It is noted that the completed development would result in a single dwelling on each strata lot, and the buildings would not include any asbestos cement cladding (as asbestos building products are banned).
It is open to the original developer of the subdivision or other property owners to investigate civil action if they believe that there is any breach of covenants, but they have no weight in the consideration of the development application. |
|
The development will increase traffic and create problems with on-street parking. |
It is estimated that the development would generate 15 to 20 vehicle trips per day. Single dwellings are typically assumed to generate 10 trips per day, and the proposal represent only a small increase in vehicle movements having regard to the total traffic generation for the street. The traffic volumes are within the capacity of the street network.
The proposal includes off-street parking in excess of the minimum requirements of the DCP and has been amended to provide more useable stacked visitor parking in driveways. The development is not anticipated to generate a significant demand for street parking. |
|
The development will detract from the streetscape. |
The development will provide an acceptable residential presentation to the street.
The proposal has been amended through the assessment process to improve the presentation of the western garage wall and rainwater tank of Dwelling 1, with the introduction of a window in the western elevation and additional landscaping. |
|
The development would reduce property values in the area. |
Impacts on property value are not a relevant planning consideration under the Environmental Planning and Assessment Act 1979. |
|
The development will have adverse noise impacts. |
The proposal is a residential use and complies with the DCP setback controls for acoustic privacy. |
|
Loss of privacy to adjoining dwellings. |
The development has been designed with the majority of living areas at ground level and the principal areas of private open space adjacent to the eastern boundary. The building and private open space areas are proposed to be cut into the site by up to 1.4m in this location, with a 1.8m high boundary fence. The screening provided by the boundary fence satisfies the DCP privacy requirements for the ground level areas.
Dwellings 2 & 3 also contain a first floor multi-purpose room with access to a front balcony. The multi-purpose rooms do not have any windows oriented towards neighbouring property. The northern side of the Dwelling 3 balcony has been provided with a privacy screen due to its proximity to living area windows and the front balcony of the adjoining dwelling at 32 Ericson Place. |
|
Loss of solar access to adjoining dwellings.
Insufficient evidence that adjoining property’s living rooms and principal private open space would not be adversely overshadowed between 9am and 3pm on 21 June.
Unit 1 appears likely to overshadow windows in the adjoining residence at No. 28 Ericson Place and may not comply with Council’s DCP. A greater setback appears necessary and desirable. |
The Applicant has submitted satisfactory shadow diagrams, which demonstrate that the proposed development would not adversely overshadow living area windows or principal private open space areas of neighbouring dwellings for more than 3 hours between 9am and 3pm on 21 June. |
|
The development is out of character with the area as the neighbourhood consists of single dwellings only. |
It is acknowledged that the proposed development is a different form of housing to the established single dwellings in the locality. However, the development does not necessarily have to be the ‘same’ in order to be considered compatible with the streetscape character of the area.
The proposal satisfactorily responds to the essential elements that make up the urban character of the existing built environment in this locality. The essential elements that make up the character of the area include building height, setbacks, and landscaped areas. The height of the proposed dwellings complies with the LEP height controls and will be similar in scale to the two storey dwellings on the neighbouring properties, noting that the subject site is downslope from the neighbouring properties. The side setbacks are compliant with the DCP and maintain a suitable rhythm of building to void spaces when viewing properties along Ericson Place. The development will address both street frontages and proposed Dwelling 1 would present as a single dwelling from the south. The existing streetscape in the locality does not contain significant canopy trees. The majority of dwellings contain some low to mid-level landscaping in the site frontage between buildings and the street, with no front fencing. The submitted landscape plan identifies adequate landscaping forward of the buildings and no front fencing.
Having regard to the above elements, it is considered that the proposed development is sufficiently compatible with the character of the area. |
|
The subdivision component of the application is not clear in the documents. |
The submitted plan set includes a subdivision plan detailing the dimensions and areas of the proposed lots. |
|
The garage dimensions are small and they include laundries. It is not realistic that they would accommodate 2 cars. |
The garages have been increased in length to accommodate the proposed laundries. The Dwelling 1 garage has a minimum internal length of 5.81m clear of the laundry. The Dwelling 2 & 3 garages have a minimum internal length of 5.71m clear of the laundries. All garages satisfy the minimum dimensions in AS2890 and will be capable of accommodating two average sized vehicles. |
|
The development would result in traffic safety issues as it would obstruct the views of drivers around the corner. |
Adequate safe sight distance around the corner has been accommodated in the original subdivision and road design. The site has a substantial road reserve in its frontage, ranging from 5.5m to 8.5m wide and the lot has a 3m x 3m splay at the corner.
The proposal would not result in any greater loss of sight distance than a single dwelling built to the allowable setbacks. |
|
Impact on community relationships and standard of maintenance if the properties are tenanted. |
The development assessment process does not fix the tenure of the proposed dwellings. Any dwelling can potentially be tenanted or owner-occupied. |
|
Inaccuracies in the Statement of Environmental Effects in relation to overshadowing, privacy, views, character and traffic. |
Noted. These impacts have been carefully considered in the assessment of the application as discussed in this report. |
|
The development will increase strain on local utilities such as internet. |
The capacity of relevant Council utilities including water supply, sewerage, and stormwater drainage have been considered in this assessment. With the recommended conditions, the existing infrastructure has capacity to service the development.
A condition has also been recommended requiring the developer to provide certification of satisfactory arrangements from the electricity and telecommunications authorities. |
|
Unit 1 has a rainwater tank located right on the street boundary. This should be relocated out of sight of the street. |
The DCP requires ancillary development, including rainwater tanks, to be located behind the building line and the proposed Dwelling 1 rainwater tank satisfies this requirement. Noting that the rainwater tank would be visible in the streetscape, the Applicant has amended the plans to include additional landscaping to screen the tank location. |
(e) The Public Interest
The proposed development satisfies relevant planning controls and will not adversely impact on the wider public interest.
Ecologically Sustainable Development and Precautionary Principle
Ecologically sustainable development requires the effective integration of economic and environmental considerations in decision-making processes.
The four principles of ecologically sustainable development are:
· the precautionary principle,
· intergenerational equity,
· conservation of biological diversity and ecological integrity,
· improved valuation, pricing and incentive mechanisms.
The principles of ESD require that a balance needs to be struck between the man-made development and the need to retain the natural vegetation. Based on the assessment provided in the report and with recommended conditions of consent, it is considered an appropriate balance has been struck.
Climate change
The proposal is not considered to be vulnerable to any risks associated with climate change.
4. DEVELOPMENT CONTRIBUTIONS APPLICABLE
Section 7.11 Contributions
In assessing s7.11 contributions, Council staff have reviewed the development in accordance with the Port Macquarie-Hastings Council Development Contributions Assessment Policy (DCAP) and applicable Contribution Plans.
The site has been provided contribution credit based on the existing vacant residential lot with area between 450m2 and 2000m2.
The proposed development will comprise 1 x 3 bedroom dwelling (Dwelling 1) and 2 x 4 bedroom dwellings (Dwellings 2 & 3) and contributions have been charged accordingly. The multi-purpose rooms in Dwellings 2 and 3 have been assessed as bedrooms in accordance with the DCAP.
Having considered the above, the proposed development will increase the demand for public amenities/services as listed under the following Contribution Plans:
1. Port Macquarie-Hastings Administration Building Contributions Plan 2007
2. Hastings S94 Administration Levy Contributions Plan
3. Port Macquarie-Hastings Open Space Contributions Plan 2018
4. Hastings S94 Major Roads Contributions Plan
5. Port Macquarie-Hastings Community Cultural and Emergency Services Contributions Plan 2005
As a result, s7.11 contributions apply and a condition of consent has been recommended to ensure payment.- Attachment 3.
Section 7.12 Contributions
The proposed development does not contain any commercial/industrial component. As a result, s7.12 contributions do not apply.
Section 64 Water and Sewer Contributions
In assessing s64 water and sewer contributions, Council staff have reviewed the development in accordance with the Port Macquarie-Hastings Council Development Contributions Assessment Policy (DCAP) and applicable Development Servicing Plans.
The site has been provided contribution credit based on the existing vacant residential lot with area between 450m2 and 2000m2.
The proposed development will comprise 1 x 3 bedroom dwelling (Dwelling 1) and 2 x 4 bedroom dwellings (Dwellings 2 & 3) and contributions have been charged accordingly. The multi-purpose rooms in Dwellings 2 and 3 have been assessed as bedrooms in accordance with the DCAP.
Having considered the above, the proposed development will increase the demand on water and sewer services.
As a result, s64 contributions apply and a condition of consent has been imposed to ensure payment.
5. CONCLUSION AND STATEMENT OF REASON
The application has been assessed in accordance with Section 4.15 of the Environmental Planning and Assessment Act 1979.
Issues raised during assessment and public exhibition of the application have been considered in the assessment of the application. Where relevant, conditions have been recommended to manage the impacts attributed to these issues.
The site is considered suitable for the proposed development and the proposal adequately addresses relevant planning controls. The development is not considered to be contrary to the public's interest and will not result a significant adverse social, environmental or economic impact. It is recommended that the application be approved, subject to the recommended conditions of consent provided in the attachment section of this report.
|
Attachments
1⇩. 2⇩. 3⇩. |